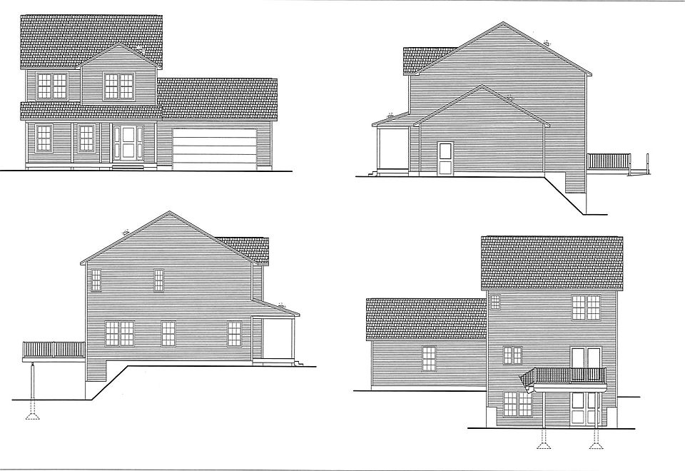
Brand-new, quality-built 3-bedroom, 2.5-bath Colonial set on 4.6 private acres, offering a thoughtfully designed and highly desirable floor plan. This home features 1,652 sq ft of living space & an attached two-car garage. A welcoming farmers porch with low-maintenance composite decking leads into an open-concept 1st floor with impressive 9' ceilings. The kitchen & dining area boast quartz countertops, a center island & a slider that opens to a 12x14 deck overlooking the peaceful, private backyard - perfect for entertaining or relaxing. Upstairs, the primary suite includes a full bath with double vanity, walk-in shower and a large walk-in closet. Two additional bedrooms, a full bath, & a convenient 2nd floor laundry area complete the level. The full walk-out basement with 9' ceilings offers excellent potential for future finished living space. Includes a one-year builder’s warranty. Where quality and comfort come together! Convenient to Route 2 for easy commute East to Boston.
New construction
$579,000
LOT 3 Three Petersham Rd, Phillipston, MA 01331
3beds
1,652sqft
Est.:
Single Family Residence
Built in 2026
4.6 Acres Lot
$-- Zestimate®
$350/sqft
$-- HOA
What's special
Walk-in showerAttached two-car garagePeaceful private backyardTwo additional bedroomsCenter islandLarge walk-in closetDouble vanity
- 1 day |
- 125 |
- 10 |
Zillow last checked: 7 hours ago
Listing updated: 11 hours ago
Listed by:
Cory Gracie 978-430-8753,
LAER Realty Partners 978-827-4018
Source: MLS PIN,MLS#: 73487616
Tour with a local agent
Facts & features
Interior
Bedrooms & bathrooms
- Bedrooms: 3
- Bathrooms: 3
- Full bathrooms: 2
- 1/2 bathrooms: 1
Primary bedroom
- Features: Bathroom - Full, Ceiling Fan(s), Walk-In Closet(s), Flooring - Wall to Wall Carpet
- Level: Second
Bedroom 2
- Features: Closet, Flooring - Wall to Wall Carpet
- Level: Second
Bedroom 3
- Features: Closet, Flooring - Wall to Wall Carpet
- Level: Second
Primary bathroom
- Features: Yes
Bathroom 1
- Features: Bathroom - Half, Pocket Door
- Level: First
Bathroom 2
- Features: Bathroom - Full, Bathroom - With Tub & Shower, Closet - Linen
- Level: Second
Bathroom 3
- Features: Bathroom - Full, Bathroom - Double Vanity/Sink, Bathroom - With Shower Stall, Countertops - Stone/Granite/Solid
- Level: Second
Dining room
- Features: Deck - Exterior, Open Floorplan, Recessed Lighting, Slider
- Level: First
Kitchen
- Features: Countertops - Stone/Granite/Solid, Kitchen Island, Open Floorplan, Recessed Lighting
- Level: First
Living room
- Features: Closet, Exterior Access, Open Floorplan, Recessed Lighting
- Level: First
Heating
- Central, Propane
Cooling
- Central Air
Appliances
- Included: Range, Dishwasher, Microwave, Refrigerator
- Laundry: Electric Dryer Hookup, Washer Hookup, Second Floor
Features
- Flooring: Carpet
- Doors: Insulated Doors
- Windows: Insulated Windows, Screens
- Basement: Full,Walk-Out Access,Interior Entry,Concrete,Unfinished
- Has fireplace: No
Interior area
- Total structure area: 1,652
- Total interior livable area: 1,652 sqft
- Finished area above ground: 1,652
Property
Parking
- Total spaces: 4
- Parking features: Attached, Garage Door Opener, Garage Faces Side, Off Street, Unpaved
- Attached garage spaces: 2
- Uncovered spaces: 2
Features
- Patio & porch: Porch, Deck - Wood
- Exterior features: Porch, Deck - Wood, Screens, Garden
- Frontage length: 201.00
Lot
- Size: 4.6 Acres
- Features: Cleared
Details
- Zoning: RA
Construction
Type & style
- Home type: SingleFamily
- Architectural style: Colonial
- Property subtype: Single Family Residence
Materials
- Frame
- Foundation: Concrete Perimeter
- Roof: Shingle
Condition
- New construction: Yes
- Year built: 2026
Utilities & green energy
- Electric: Circuit Breakers, 200+ Amp Service
- Sewer: Private Sewer
- Water: Private
- Utilities for property: for Electric Range, for Electric Dryer, Washer Hookup
Community & HOA
Community
- Features: House of Worship, Public School
HOA
- Has HOA: No
Location
- Region: Phillipston
Financial & listing details
- Price per square foot: $350/sqft
- Date on market: 3/17/2026
- Road surface type: Paved
Estimated market value
Not available
Estimated sales range
Not available
Not available
Price history
Price history
| Date | Event | Price |
|---|---|---|
| 3/17/2026 | Listed for sale | $579,000$350/sqft |
Source: MLS PIN #73487616 Report a problem | ||
Public tax history
Public tax history
Tax history is unavailable.BuyAbility℠ payment
Est. payment
$3,395/mo
Principal & interest
$2806
Property taxes
$589
More affordability tools
Climate risks
Neighborhood: 01331
Nearby schools
GreatSchools rating
- 2/10Athol Community Elementary SchoolGrades: PK-4Distance: 0.6 mi
- 4/10Athol-Royalston Middle SchoolGrades: 5-8Distance: 0.8 mi
- 3/10Athol High SchoolGrades: 9-12Distance: 0.1 mi
Local experts in 01331
- Massachusetts
- Worcester County
- Athol
- 01331
- LOT 3 Three Petersham Rd






