Church St, Tignish, PE C0B 2B0
What's special
- 779 days |
- 16 |
- 0 |
Zillow last checked: 7 hours ago
Listing updated: August 18, 2025 at 04:38am
Tracy Wedge,PEI - Sales,
CENTURY 21 NORTHUMBERLAND REALTY
Facts & features
Interior
Bedrooms & bathrooms
- Bedrooms: 2
- Bathrooms: 1
- Full bathrooms: 1
- Main level bathrooms: 1
- Main level bedrooms: 2
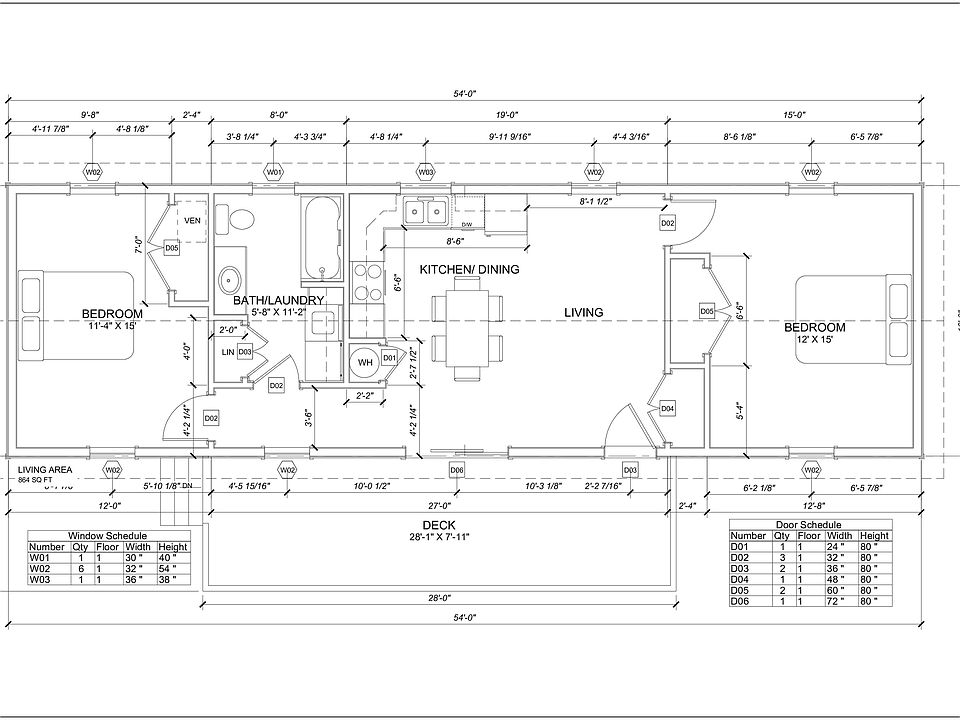
Rooms
- Room types: Kitchen, Bedroom, Laundry, Bath 1
Primary bedroom
- Level: Main
Bedroom 1
- Level: Main
- Area: 171
- Dimensions: 11.4 x 15
Bedroom 2
- Level: Main
- Area: 180
- Dimensions: 12 x 15
Bathroom 1
- Level: Main
Kitchen
- Level: Main
- Area: 0
- Length: 18
Heating
- Other Heating/Cooling
Cooling
- Other Heating/Cooling
Appliances
- Included: Oven - Propane, Dishwasher, Dryer, Washer, Microwave, Refrigerator
Features
- Flooring: Laminate, Vinyl
- Basement: None
Interior area
- Total structure area: 864
- Total interior livable area: 864 sqft
Property
Parking
- Parking features: Gravel, None, No Garage
Lot
- Features: Cleared
Details
- Parcel number: 5512
- On leased land: Yes
- Lease amount: $0
- Zoning: Res
- Other equipment: Fuel Tank(s)
Construction
Type & style
- Home type: MobileManufactured
- Property subtype: Mobile / Mini
Materials
- Vinyl Siding
- Foundation: Block
- Roof: Steel
Utilities & green energy
- Sewer: Municipal
- Water: Municipal
- Utilities for property: Cable Connected, Electricity Connected, High Speed Internet, Phone Connected, Propane
Community & HOA
Community
- Features: Golf, Park, School Bus Service
Location
- Region: Tignish
Financial & listing details
- Price per square foot: C$185/sqft
- Date on market: 2/16/2024
- Inclusions: Refrigerator, Stove, Dishwasher, Washer, Dryer, Microwave
- Electric utility on property: Yes
Tracy Wedge,PEI - Sales
(902) 856-1556
By pressing Contact Agent, you agree that the real estate professional identified above may call/text you about your search, which may involve use of automated means and pre-recorded/artificial voices. You don't need to consent as a condition of buying any property, goods, or services. Message/data rates may apply. You also agree to our Terms of Use. Zillow does not endorse any real estate professionals. We may share information about your recent and future site activity with your agent to help them understand what you're looking for in a home.
Price history
Price history
| Date | Event | Price |
|---|---|---|
| 2/20/2026 | Listed for sale | C$99,000C$115/sqft |
Source: | ||
Public tax history
Public tax history
Tax history is unavailable.Climate risks
Neighborhood: C0B
Nearby schools
GreatSchools rating
No schools nearby
We couldn't find any schools near this home.
Schools provided by the listing agent
- Elementary: Tignish Elementary School
- Middle: M. E. Callaghan Intermediate School
- High: Westisle Composite High School
Source: Prince Edward Island REA. This data may not be complete. We recommend contacting the local school district to confirm school assignments for this home.






