All brick home under construction inside city limits!!! Final build to contain Granite countertops in kitchen and baths along with luxury vinyl plank flooring throughout. 9-ft ceiling in kitchen and living area along with huge picture window in living room. Spacious walk-in closet and private master bath. Laundry room conveniently located off the 2-car garage. City conveniences but a feel of country. Estimated completion April 2026.
Active
$198,000
932 S Fir St, Beebe, AR 72012
3beds
1,200sqft
Est.:
Single Family Residence
Built in 2026
0.26 Acres Lot
$-- Zestimate®
$165/sqft
$-- HOA
What's special
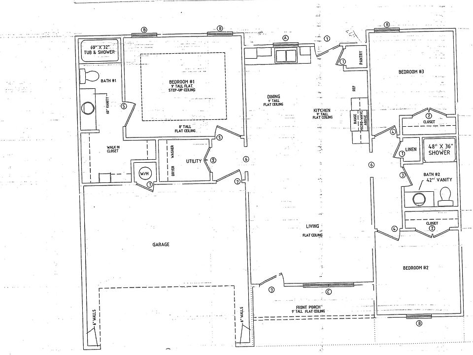
Spacious walk-in closetPrivate master bath
- 61 days |
- 43 |
- 0 |
Zillow last checked: 7 hours ago
Listing updated: February 02, 2026 at 10:17pm
Listed by:
Rhonda R Weeks 501-288-2777,
Weeks Realty Group 501-882-9999,
Trenton Weeks 501-288-1798,
Weeks Realty Group
Source: CARMLS,MLS#: 26003760
Tour with a local agent
Facts & features
Interior
Bedrooms & bathrooms
- Bedrooms: 3
- Bathrooms: 2
- Full bathrooms: 2
Dining room
- Features: Kitchen/Dining Combo
Heating
- Electric
Cooling
- Electric
Appliances
- Included: Free-Standing Range, Microwave, Dishwasher, Electric Water Heater
- Laundry: Washer Hookup, Electric Dryer Hookup, Laundry Room
Features
- Walk-In Closet(s), Other, Ceiling Fan(s), Granite Counters, Sheet Rock, Sheet Rock Ceiling, 3 Bedrooms Same Level
- Flooring: Luxury Vinyl
- Windows: Insulated Windows
- Has fireplace: No
- Fireplace features: None
Interior area
- Total structure area: 1,200
- Total interior livable area: 1,200 sqft
Property
Parking
- Total spaces: 2
- Parking features: Garage, Two Car
- Has garage: Yes
Features
- Levels: One
- Stories: 1
- Patio & porch: Patio
Lot
- Size: 0.26 Acres
- Dimensions: 91.37 x 107.50 x 91.37 x 107.50
- Features: Level, Subdivided
Construction
Type & style
- Home type: SingleFamily
- Architectural style: Traditional
- Property subtype: Single Family Residence
Materials
- Brick
- Foundation: Slab
- Roof: Shingle
Condition
- New construction: Yes
- Year built: 2026
Utilities & green energy
- Electric: Elec-Municipal (+Entergy)
- Sewer: Public Sewer
- Water: Public
Community & HOA
Community
- Subdivision: Metes & Bounds
HOA
- Has HOA: No
Location
- Region: Beebe
Financial & listing details
- Price per square foot: $165/sqft
- Annual tax amount: $64
- Date on market: 1/27/2026
- Listing terms: VA Loan,FHA,Conventional,Cash,USDA Loan
- Road surface type: Paved
Estimated market value
Not available
Estimated sales range
Not available
Not available
Price history
Price history
| Date | Event | Price |
|---|---|---|
| 1/27/2026 | Listed for sale | $198,000$165/sqft |
Source: | ||
Public tax history
Public tax history
Tax history is unavailable.BuyAbility℠ payment
Est. payment
$1,137/mo
Principal & interest
$1050
Property taxes
$87
More affordability tools
Climate risks
Neighborhood: 72012
Nearby schools
GreatSchools rating
- NABeebe Early ChildhoodGrades: K-1Distance: 0.6 mi
- 8/10Beebe Junior High SchoolGrades: 7-8Distance: 1 mi
- 6/10Beebe High SchoolGrades: 9-12Distance: 1 mi
Schools provided by the listing agent
- Elementary: Beebe
- Middle: Beebe
- High: Beebe
Source: CARMLS. This data may not be complete. We recommend contacting the local school district to confirm school assignments for this home.
Local experts in 72012
- Arkansas
- White County
- Beebe
- 72012
- 932 S Fir St





