907 River Sky Rd, Lavon, TX 75166
What's special
- 2 days |
- 15 |
- 3 |
Zillow last checked: 7 hours ago
Listing updated: March 09, 2026 at 09:10pm
Lee Jones 0439466 713-948-6666,
Perry Homes Realty LLC
Travel times
Schedule tour
Select your preferred tour type — either in-person or real-time video tour — then discuss available options with the builder representative you're connected with.
Facts & features
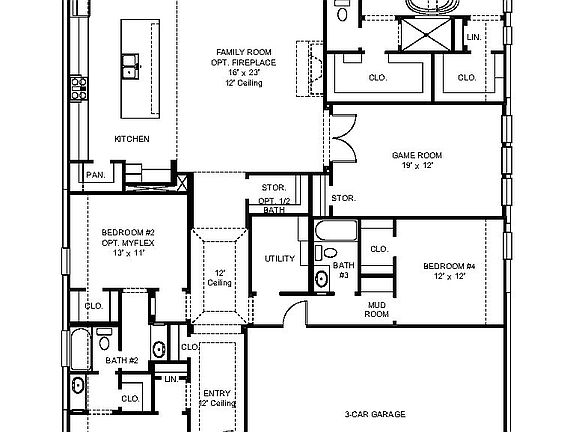
Interior
Bedrooms & bathrooms
- Bedrooms: 4
- Bathrooms: 4
- Full bathrooms: 3
- 1/2 bathrooms: 1
Primary bedroom
- Features: Ceiling Fan(s), Hollywood Bath, Walk-In Closet(s)
- Level: First
- Dimensions: 20 x 14
Bedroom
- Features: Walk-In Closet(s)
- Level: First
- Dimensions: 13 x 11
Bedroom
- Features: Walk-In Closet(s)
- Level: First
- Dimensions: 13 x 11
Bedroom
- Features: Walk-In Closet(s)
- Level: First
- Dimensions: 12 x 12
Primary bathroom
- Features: Built-in Features, Dual Sinks, Double Vanity, Granite Counters, Linen Closet, Separate Shower
- Level: First
- Dimensions: 12 x 9
Dining room
- Level: First
- Dimensions: 11 x 13
Other
- Features: Built-in Features, Granite Counters, Linen Closet
- Level: First
- Dimensions: 9 x 5
Other
- Features: Built-in Features, Granite Counters, Linen Closet
- Level: First
- Dimensions: 7 x 5
Game room
- Level: First
- Dimensions: 19 x 12
Half bath
- Features: Granite Counters
- Level: First
- Dimensions: 6 x 5
Kitchen
- Features: Built-in Features, Eat-in Kitchen, Granite Counters, Kitchen Island, Pantry, Walk-In Pantry
- Level: First
- Dimensions: 16 x 11
Living room
- Features: Ceiling Fan(s)
- Level: First
- Dimensions: 16 x 23
Mud room
- Level: First
- Dimensions: 3 x 5
Utility room
- Features: Utility Room
- Level: First
- Dimensions: 9 x 7
Heating
- Central, Zoned
Cooling
- Ceiling Fan(s), Electric, Zoned
Appliances
- Included: Dishwasher, Gas Cooktop, Disposal, Gas Oven, Gas Water Heater, Microwave, Tankless Water Heater
- Laundry: Washer Hookup, Dryer Hookup, ElectricDryer Hookup, Laundry in Utility Room
Features
- Built-in Features, Decorative/Designer Lighting Fixtures, Double Vanity, Eat-in Kitchen, Granite Counters, High Speed Internet, Kitchen Island, Open Floorplan, Pantry, Smart Home, Walk-In Closet(s)
- Flooring: Carpet, Tile
- Has basement: No
- Number of fireplaces: 1
- Fireplace features: Living Room, Wood Burning
Interior area
- Total interior livable area: 2,895 sqft
Video & virtual tour
Property
Parking
- Total spaces: 3
- Parking features: Door-Multi, Garage Faces Front, Garage, Garage Door Opener
- Attached garage spaces: 3
Features
- Levels: One
- Stories: 1
- Patio & porch: Covered
- Exterior features: Lighting, Rain Gutters
- Pool features: None
- Fencing: Back Yard,Privacy,Wood
Lot
- Size: 7,496.68 Square Feet
- Dimensions: 60 x 125
- Features: Backs to Greenbelt/Park, Subdivision, Sprinkler System, Few Trees
Details
- Parcel number: R1334000A01201
Construction
Type & style
- Home type: SingleFamily
- Architectural style: Traditional,Detached
- Property subtype: Single Family Residence
- Attached to another structure: Yes
Materials
- Brick, Rock, Stone
- Foundation: Slab
- Roof: Composition
Condition
- New construction: Yes
- Year built: 2026
Details
- Builder name: PERRY HOMES
Utilities & green energy
- Water: Public
- Utilities for property: Separate Meters, Water Available
Green energy
- Energy efficient items: Appliances, Doors, Lighting, Rain/Freeze Sensors, Water Heater, Windows
- Indoor air quality: Ventilation
Community & HOA
Community
- Features: Clubhouse, Park, Trails/Paths, Community Mailbox, Curbs
- Security: Prewired, Carbon Monoxide Detector(s), Smoke Detector(s)
- Subdivision: Hillstead 60'
HOA
- Has HOA: Yes
- Services included: All Facilities
- HOA fee: $950 annually
- HOA name: Hillstead Homeowners Association
- HOA phone: 214-705-1615
Location
- Region: Lavon
Financial & listing details
- Price per square foot: $236/sqft
- Date on market: 3/9/2026
- Listing terms: Cash,Conventional,FHA,VA Loan
- Road surface type: Dirt
About the community

Source: Perry Homes
5 homes in this community
Available homes
| Listing | Price | Bed / bath | Status |
|---|---|---|---|
Current home: 907 River Sky Rd | $681,900 | 4 bed / 4 bath | Available |
| 912 River Sky Rd | $636,900 | 4 bed / 4 bath | Available |
| 854 Stoney Bridge Way | $649,900 | 4 bed / 4 bath | Available |
| 909 River Sky Rd | $654,900 | 4 bed / 4 bath | Available |
| 911 River Sky Rd | $670,900 | 4 bed / 4 bath | Available |
Source: Perry Homes
Contact builder

By pressing Contact builder, you agree that Zillow Group and other real estate professionals may call/text you about your inquiry, which may involve use of automated means and prerecorded/artificial voices and applies even if you are registered on a national or state Do Not Call list. You don't need to consent as a condition of buying any property, goods, or services. Message/data rates may apply. You also agree to our Terms of Use.
Learn how to advertise your homesEstimated market value
$671,200
$638,000 - $705,000
$2,866/mo
Price history
| Date | Event | Price |
|---|---|---|
| 2/28/2026 | Price change | $681,900-4.2%$236/sqft |
Source: | ||
| 2/24/2026 | Listed for sale | $711,900$246/sqft |
Source: | ||
Public tax history
Monthly payment
Neighborhood: 75166
Nearby schools
GreatSchools rating
- 9/10P M Akin Elementary SchoolGrades: PK-4Distance: 3.9 mi
- 8/10Grady Burnett J High SchoolGrades: 7-8Distance: 4.5 mi
- 7/10Wylie East High SchoolGrades: 9-12Distance: 2.6 mi
Schools provided by the builder
- District: Wylie ISD
Source: Perry Homes. This data may not be complete. We recommend contacting the local school district to confirm school assignments for this home.







