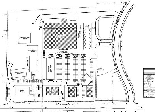
Reasonable taxes!! Ready to build on a prime location in the fast growing Northwest suburb of Elgin area on busy Summit (Golf) Road. Approximately 35,000 cars a day exposure. Easy ingress and egress with ample parking. Ideal for strip center, big box store, car wash, grocery store,Multi Family Development and so much more. BRING YOUR IDEAS!! Buyer must be able to do a quick closing!
This property is off market, which means it's not currently listed for sale or rent on Zillow. This may be different from what's available on other websites or public sources.
