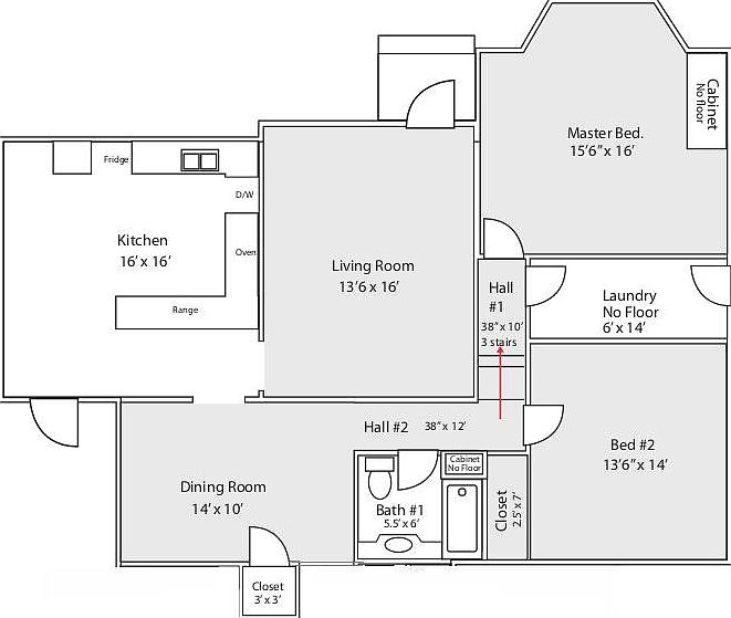
This is the front part of an upgraded house, approx. 1200 sq.ft. Upscale and secure residential area of Downey, with high rated schools, close to shopping, St. Raymonds church, and freeways. 2 bedrooms, 1 bath, living room, dining room, spacious kitchen with a breakfast nook. Laminate flooring all over the house, tile flooring in the kitchen, bathroom and living room. Window air conditioners installed. Kitchen comes with a stove top, oven and dishwasher. Laundry room with washer and dryer is shared with a back unit. Plenty of storage space in the garage. Deposit: the first and last month of rent. Pets (cats and small dogs) are OK.
This property is off market, which means it's not currently listed for sale or rent on Zillow. This may be different from what's available on other websites or public sources.
