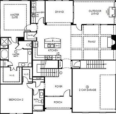
The Carrington features a spacious kitchen open to Great room, main level Master retreat with huge walk in closet, main level Guest bedroom, fun Game room for family movie night and outdoor living space.
This property is off market, which means it's not currently listed for sale or rent on Zillow. This may be different from what's available on other websites or public sources.


