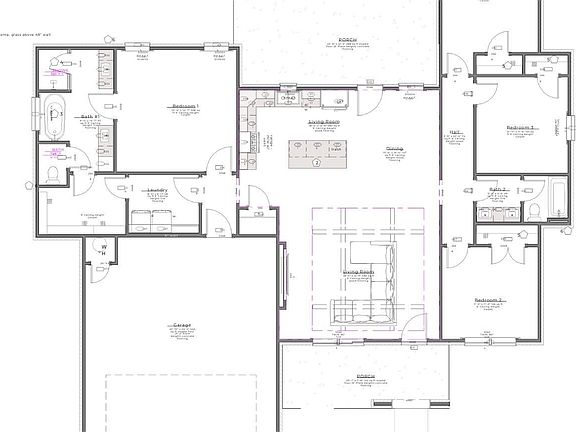
Welcome to 742 Grand Valley Loop in the new up and coming Valley View Estates in Austin! This is going to be approx. 1915 sq ft - 4 bed, 2 bath, split floor plan with and open concept. Upon walking in from the front door you are welcomed into the Living Room, dining room past that to the right and the Kitchen to the left. Guest rooms and restroom are on the right side of the home while the primary bedroom, bathroom, laundry and pantry are to the left. Framing has just been completed and Builder is allowing if home is under contract before sheetrock is installed that buyer would be able to select finishes- with a non-refundable deposit. Exterior rendering, Mood Board and floor plan are uploaded. Estimated completion date March/April 2026.
Active
$361,300
742 Grand Valley Loop, Austin, AR 72007
4beds
1,932sqft
Est.:
Single Family Residence
Built in 2026
0.27 Acres Lot
$360,700 Zestimate®
$187/sqft
$-- HOA
What's special
Primary bedroomSplit floor planOpen conceptDining room
- 51 days |
- 305 |
- 2 |
Zillow last checked: 8 hours ago
Listing updated: 15 hours ago
Listed by:
Kayla Reyer 501-743-7721,
Venture Realty Group - Cabot 501-259-8437
Source: CARMLS,MLS#: 26000834
Tour with a local agent
Facts & features
Interior
Bedrooms & bathrooms
- Bedrooms: 4
- Bathrooms: 2
- Full bathrooms: 2
Dining room
- Features: Eat-in Kitchen, Breakfast Bar
Heating
- Electric
Cooling
- Electric
Appliances
- Included: Free-Standing Range, Microwave, Electric Range, Dishwasher, Disposal, Plumbed For Ice Maker, Electric Water Heater
- Laundry: Washer Hookup, Electric Dryer Hookup, Laundry Room
Features
- Walk-In Closet(s), Ceiling Fan(s), Walk-in Shower, Breakfast Bar, Kit Counter-Quartz, Pantry, Sheet Rock, Primary Bedroom Apart, Guest Bedroom Apart, 4 Bedrooms Same Level
- Flooring: Tile, Luxury Vinyl
- Doors: Insulated Doors
- Windows: Insulated Windows
- Has fireplace: Yes
Interior area
- Total structure area: 1,932
- Total interior livable area: 1,932 sqft
Property
Parking
- Total spaces: 2
- Parking features: Garage, Two Car
- Has garage: Yes
Features
- Levels: One
- Stories: 1
- Patio & porch: Patio, Porch
- Exterior features: Rain Gutters
Lot
- Size: 0.27 Acres
- Dimensions: 90.00 x 129.77
- Features: Level
Details
- Parcel number: 71200603000
Construction
Type & style
- Home type: SingleFamily
- Architectural style: Traditional
- Property subtype: Single Family Residence
Materials
- Brick, Metal/Vinyl Siding
- Foundation: Slab
- Roof: Shingle
Condition
- New construction: Yes
- Year built: 2026
Utilities & green energy
- Electric: Elec-Municipal (+Entergy)
- Sewer: Public Sewer
- Water: Public
Green energy
- Energy efficient items: Doors
Community & HOA
Community
- Security: Smoke Detector(s)
- Subdivision: Metes & Bounds
HOA
- Has HOA: No
Location
- Region: Austin
Financial & listing details
- Price per square foot: $187/sqft
- Annual tax amount: $5
- Date on market: 1/6/2026
- Listing terms: VA Loan,FHA,Conventional,Cash,USDA Loan
- Road surface type: Paved
Estimated market value
$360,700
$343,000 - $379,000
$1,994/mo
Price history
Price history
| Date | Event | Price |
|---|---|---|
| 1/6/2026 | Listed for sale | $361,300+652.7%$187/sqft |
Source: | ||
| 11/24/2025 | Sold | $48,000$25/sqft |
Source: | ||
Public tax history
Public tax history
Tax history is unavailable.BuyAbility℠ payment
Est. payment
$1,884/mo
Principal & interest
$1712
Property taxes
$172
Climate risks
Neighborhood: 72007
Nearby schools
GreatSchools rating
- 6/10Cabot Middle School NorthGrades: 5-6Distance: 2.4 mi
- 8/10Cabot Junior High NorthGrades: 7-8Distance: 2.9 mi
- 8/10Cabot High SchoolGrades: 9-12Distance: 3.1 mi





