Coming soon - this home is currently being enjoyed by another resident but will be available soon. Pre-lease this home now with Tricon Pre-Lease Guarantee. This home is professionally managed by Tricon, dedicated to creating exceptional rental experiences. Featuring 4 bedrooms, 2.0 bathrooms, and approximately 2,164 square feet, this well-maintained home offers a high standard of rental living, supported by a team that puts residents first. As a Tricon resident, you'll enjoy access to Tricon Vantage a program designed to support your rental journey. Benefits include: (i) Our industry-first Resident Bill of Rights (outlining our commitment to an exceptional rental experience), (ii) free positive credit reporting, and (iii) up to $5,000 in down payment assistance after five years of residency. Tricon is proud to offer homes where residents feel supported every step of the way.
- Please beware of leasing fraud! If someone other than an official Tricon Residential leasing agent attempts to rent you a home that is owned and professionally managed by Tricon Residential, please call our Fraud Prevention Hotline at 877.241.
- This home may be in a community that has rental registration or specific lease-term requirements. If so, please note that your move-in date may be delayed pending rental registration approval, or the term of your lease (and the corresponding monthly base rent) may be adjusted.
- There is an application fee of $55 (or less depending on the state) per occupant aged 18 or older. Completed applications are considered on a "first-come, first-served" basis. There is a holding deposit of $250 per home, which is credited to the approved applicant's first month's rent after move-in, refunded if the application is denied, or forfeited if the move-in is canceled by an approved applicant. Approved applicants are required to execute a Lease Agreement and submit the full security deposit within 48 hours after approval of the Lease. The Lease start date must be within 10 days after approval (certain exceptions may apply at Tricon Single-Family Rental Communities). This requirement is applicable even if an approved applicant has not seen the inside of the home. Tricon Residential is proud to be an Equal Opportunity Housing Provider.
- Minimum lease term is one-year (13 mos. for homes in California). We collect a security deposit equal to one month's rent for all new leases. Resident pays for all utilities including trash, sewer, and water.
- Lease term may affect monthly rent. A 3.5% rent escalation applies to leases 18 months or greater beginning month 13.
- Tricon is a pet-friendly housing provider. We accept most dogs, cats, birds, small caged mammals and fish. However, pets often have an impact on our homes which causes excessive wear and tear. That's why we require a one-time fee of $300 for each pet (except in CA, CO, OR, WA, and WI), and $44 per month pet rent ($35 in Colorado).
- Pricing displayed reflects the lowest option for a given lease term and is deemed reliable but not guaranteed. Actual pricing will vary based on the options selected. We may revise the pricing for products and services we offer without prior notice.
- A monthly Solar Fee will apply to certain homes equipped with a solar system; the fee varies by home. The energy generated by the solar systems can result in a credit to offset utility costs.
- An administrative fee is due prior to move-in. Other mandatory fees or charges may apply; review the Lease carefully for a full list of applicable fees and charges.
- Tricon makes every effort to display accurate home amenity charge information. However, on rare occasions, a home may have an amenity (and a related charge) that is not reflected on our website. To double-check the amenity charges for this home, please consult with your leasing agent.
- All Promotions are subject to the specific terms, conditions, and restrictions disclosed in connection therewith, and are subject to being changed or discontinued without notice. Photos are representative only and may not reflect the home's current appliances or other features. If you have specific questions about a home's features, please contact us. While we strive for accuracy, pricing, availability, and other listing information may include technical inaccuracies or typographical errors.
- Other terms and conditions apply. Refer to our online Terms of Agreement for more details.
-
Images and content may include virtually staged appliances or furnishings created using artificial intelligence (AI) technology. These enhancements are for illustrative purposes and may not represent physical items present which may differ from the actual property condition. No guarantee or warranty is made regarding any depicted appliances or features. Consumers should rely on in-person viewings and official documentation.
- A fee of $55.00 will be included in your monthly Services and Amenities fee for high-speed internet.
- This home is equipped with in-home laundry appliances, which Tricon will provide and maintain. We charge $35 per month for homes with in-place washer/dryers.
A Pool Maintenance Fee of $150 per month applies to any home with a private pool.
Available After Apr 3, 2026
House for rent
$2,849/mo
Fees may apply
7302 Barry Rd, Tampa, FL 33634
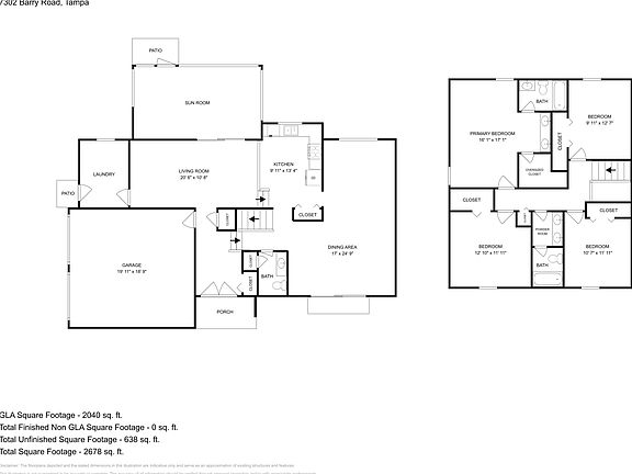
4beds
2,164sqft
Price may not include required fees and charges. Price shown reflects the lease term provided. Learn more|
Single family residence
Available Fri Apr 3 2026
Cats, dogs OK
In unit laundry
What's special
Private poolIn-home laundry appliances
- 33 days |
- -- |
- -- |
Zillow last checked: 10 hours ago
Listing updated: March 28, 2026 at 02:26am
Travel times
Facts & features
Interior
Bedrooms & bathrooms
- Bedrooms: 4
- Bathrooms: 2
- Full bathrooms: 2
Appliances
- Included: Dryer, Washer
- Laundry: In Unit
Interior area
- Total interior livable area: 2,164 sqft
Property
Parking
- Details: Contact manager
Features
- Exterior features: Garbage not included in rent, High-speed Internet Ready, No Utilities included in rent, Sewage not included in rent, Water not included in rent
- Has private pool: Yes
- Pool features: Pool
Details
- Parcel number: 172825093000002000130U
Construction
Type & style
- Home type: SingleFamily
- Property subtype: Single Family Residence
Condition
- Year built: 1973
Community & HOA
HOA
- Amenities included: Pool
Location
- Region: Tampa
Financial & listing details
- Lease term: 1 Year
Price history
| Date | Event | Price |
|---|---|---|
| 2/24/2026 | Listed for rent | $2,849$1/sqft |
Source: Zillow Rentals Report a problem | ||
| 1/5/2026 | Listing removed | $2,849$1/sqft |
Source: Zillow Rentals Report a problem | ||
| 12/3/2025 | Listed for rent | $2,849+2.2%$1/sqft |
Source: Zillow Rentals Report a problem | ||
| 11/24/2025 | Listing removed | $2,789$1/sqft |
Source: Zillow Rentals Report a problem | ||
| 11/12/2025 | Price change | $2,789-1.1%$1/sqft |
Source: Zillow Rentals Report a problem | ||
| 11/4/2025 | Price change | $2,819-1.1%$1/sqft |
Source: Zillow Rentals Report a problem | ||
| 10/31/2025 | Listed for rent | $2,849+3.8%$1/sqft |
Source: Zillow Rentals Report a problem | ||
| 8/2/2023 | Listing removed | -- |
Source: Zillow Rentals Report a problem | ||
| 7/21/2023 | Listed for rent | $2,745$1/sqft |
Source: Zillow Rentals Report a problem | ||
| 7/21/2023 | Listing removed | -- |
Source: Zillow Rentals Report a problem | ||
| 7/20/2023 | Price change | $2,745-5.2%$1/sqft |
Source: Zillow Rentals Report a problem | ||
| 7/12/2023 | Price change | $2,895-4.9%$1/sqft |
Source: Zillow Rentals Report a problem | ||
| 6/25/2023 | Price change | $3,045-6.5%$1/sqft |
Source: Zillow Rentals Report a problem | ||
| 6/9/2023 | Price change | $3,255-2.7%$2/sqft |
Source: Zillow Rentals Report a problem | ||
| 6/3/2023 | Price change | $3,345-4.3%$2/sqft |
Source: Zillow Rentals Report a problem | ||
| 5/9/2023 | Listed for rent | $3,495+27.8%$2/sqft |
Source: Zillow Rentals Report a problem | ||
| 6/29/2021 | Listing removed | -- |
Source: Zillow Rental Network Premium Report a problem | ||
| 5/11/2021 | Price change | $2,735+7.5%$1/sqft |
Source: Zillow Rental Network Premium Report a problem | ||
| 4/28/2021 | Listed for rent | $2,545$1/sqft |
Source: Zillow Rental Network Premium Report a problem | ||
| 8/9/2019 | Sold | $280,000-1.8%$129/sqft |
Source: Public Record Report a problem | ||
| 7/14/2019 | Pending sale | $285,000$132/sqft |
Source: Keller Williams Realty New Tampa #T3184175 Report a problem | ||
| 7/2/2019 | Listed for sale | $285,000+5.8%$132/sqft |
Source: KELLER WILLIAMS - NEW TAMPA #T3184175 Report a problem | ||
| 1/2/2019 | Listing removed | $269,500$125/sqft |
Source: SMART HOMES REALTY #T3133957 Report a problem | ||
| 12/12/2018 | Price change | $269,500-2%$125/sqft |
Source: SMART HOMES REALTY #T3133957 Report a problem | ||
| 9/19/2018 | Listed for sale | $275,000+100.7%$127/sqft |
Source: Owner Report a problem | ||
| 10/6/2009 | Sold | $137,000-51.9%$63/sqft |
Source: Public Record Report a problem | ||
| 11/2/2005 | Sold | $285,000+108%$132/sqft |
Source: Public Record Report a problem | ||
| 5/4/2000 | Sold | $137,000+50.5%$63/sqft |
Source: Public Record Report a problem | ||
| 3/28/2000 | Sold | $91,000$42/sqft |
Source: Public Record Report a problem | ||
Neighborhood: Town 'n' Country
Nearby schools
GreatSchools rating
- 5/10Morgan Woods Elementary SchoolGrades: PK-5Distance: 0.3 mi
- 3/10Webb Middle SchoolGrades: 6-8Distance: 1 mi
- 4/10Leto High SchoolGrades: 9-12Distance: 2.4 mi







