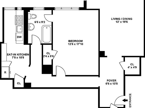
AMAZINGLY HUGE, HUGE 1 BEDROOM, BIGGER THAN MOST 2 BEDROOMS. LOOK AT THE FLOOR PLAN! This HUGE, LOADED with DETAILS AND SPACIOUS CLOSETS one bedroom has, 9'4 ceilings. Enter the foyer, which leads to a large living/dining room for entertaining and a gigantic bedroom, with an en suite bath. This bedroom can fit your very own California King. You will love the beautiful hard wood floors and the big windows. There are massive closets throughout, which include a 4 foot walk-in closet. The windowed eat-in kitchen has an over abundance of cabinets and a pantry. There is a live-in super & porter, 2 elevators along with a service entrance & a service elevator and part time doorman. This Beaux-Arts landmark building was built in 1912 and constructed by famous architects George and Edward Blum. The Beaumont's legendary former residents include American novelist and scholar Ralph Waldo Ellison and noted American contralto, Marian Anderson. Welcome to The Beaumont.
This property is off market, which means it's not currently listed for sale or rent on Zillow. This may be different from what's available on other websites or public sources.



