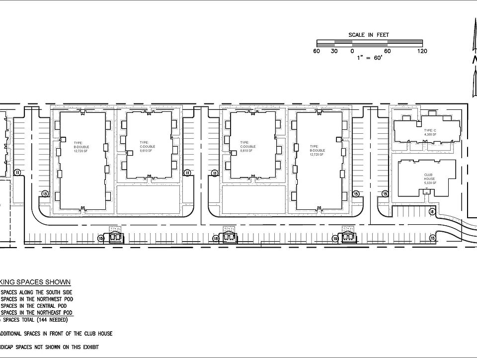
This uniquely located development property has SO much potential for investors. The highest and best use is a Residential High Density multifamily development with 24 units per acre. (Zoned RH-24). See the concept drawings in the pictures above. Seller will convey some irrigation water shares. You can live in the 2520 sf house and enjoy the 5.28 acres while you decide which plan works best. The house was built in 1980 and does need some updating. It comes with 2 shop buildings for all your valuables. Don't overlook this property in one of the hottest areas of Grand Junction. Make the call today and check it out!
Lot/land
$860,000
679-24 E 1/4 Rd, Grand Junction, CO 81504
3beds
2baths
5.28Acres
Unimproved Land
Built in 1980
5.28 Acres Lot
$-- Zestimate®
$341/sqft
$-- HOA
What's special
- 1 day |
- 50 |
- 0 |
Zillow last checked: 7 hours ago
Listing updated: April 01, 2026 at 07:09pm
Listed by:
JALYN VANCONETT 970-986-5722,
RED ROCK REAL ESTATE
Source: GJARA,MLS#: 20261463
Facts & features
Interior
Bedrooms & bathrooms
- Bedrooms: 3
- Bathrooms: 2
Interior area
- Total structure area: 2,520
- Total interior livable area: 2,520 sqft
Property
Parking
- Total spaces: 6
- Parking features: Other
- Garage spaces: 6
Accessibility
- Accessibility features: None
Features
- Stories: 1
- Fencing: Partial
Lot
- Size: 5.28 Acres
- Features: Irregular Lot
Details
- Additional structures: Outbuilding
- Parcel number: 294504200138
- Zoning description: RH-24
Utilities & green energy
- Sewer: Septic Tank
- Water: Public
- Utilities for property: Water Connected
Community & HOA
Community
- Subdivision: None
HOA
- Has HOA: No
- Services included: None
Location
- Region: Grand Junction
- Elevation: 4568
Financial & listing details
- Price per square foot: $341/sqft
- Annual tax amount: $3,244
- Date on market: 4/1/2026
- Road surface type: Paved
Estimated market value
Not available
Estimated sales range
Not available
Not available
Price history
Price history
| Date | Event | Price |
|---|---|---|
| 4/2/2026 | Listed for sale | $860,000$341/sqft |
Source: GJARA #20261463 Report a problem | ||
Public tax history
Public tax history
Tax history is unavailable.Monthly payment
Estimated monthly payment
All calculations are estimates and provided by Zillow, Inc. for informational purposes only. Actual amounts may vary.
HOA fees may include property taxes on listings classified as Co-Ops. Contact the listing agent and/or owner for fee details.
Mortgage interest rates are dependent on a number of factors, including credit score, down payment, and repayment length. Interest rate data provided by Zillow Group Marketplace, Inc. as of 1/1/1970 from various mortgage lenders with which we have lead or other similar arrangements; the Estimated Payment is an average of those rates.
See how much you could borrow to make a competitive offer.
Climate risks
Neighborhood: 81504
Nearby schools
GreatSchools rating
- 7/10Pomona Elementary SchoolGrades: K-5Distance: 1.5 mi
- 5/10West Middle SchoolGrades: 6-8Distance: 2.1 mi
- 5/10Grand Junction High SchoolGrades: 9-12Distance: 2.7 mi
Schools provided by the listing agent
- Elementary: Pomona
- Middle: West
- High: Grand Junction
Source: GJARA. This data may not be complete. We recommend contacting the local school district to confirm school assignments for this home.
Local experts in 81504
- Colorado
- Mesa County
- Grand Junction
- 81504
- 679-24 E 1/4 Rd





