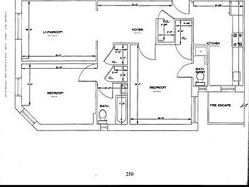
(*Request Tour*, *Schedule A Showing*, *Send Message*, and/or just want to *Ask A Question?*, please reach out directly to *Manhattan Modern Management*, the listing experts on this property. Here to serve all of your real estate needs. Thank you!!) *ABOUT APARTMENT 5-I:* Nestled on scenic Riverside Drive in the historic and iconic Hamilton Heights expanse of Harlem, 668 Riverside Drive Condominiums showcases skyline with expansive views over Riverside Park, comfortable and spacious layouts. Built in 1907, this West 144th Street southeast corner building was successfully converted to condominiums in 2007. Residents enjoy tranquil and friendly lifestyle share throughout the building; high ceilings; elevator and laundry in building. Life in Apt 5-I offers its occupants views facing south, west and north, with an abundance of sunlight throughout the daytime hours. The airy apartment features hardwood flooring throughout. Upon entering 5-I, there is the entry foyer, which could double as small dining room area. Immediately to the left is a short hallway that leads to storage closets and the long galley windowed kitchen that has ample cabinet storage, has an eat-in nook and is fully equipped with all stainless steel appliances. Next to the foyer are the first large bedroom which has windows and closet space as well as an en suite three-piece bathroom. A hallway leading from the foyer features more storage closets and the sun-filled spacious master bedroom, which has awesome views overlooking Riverside Drive. To the right of the foyer leads into the long and spacious sunny living room with widespread views towards the Hudson River. This condo has ample storage space with 4 large capacity closets; 2 of which are walk-in closets. The Riverside/Broadway/West 145th area is accessible to all shopping and transportation. Fine and fun dining. Easy commute to area colleges (both Columbia University campuses and City College). Riverbank State Park is directly across the street, which features activities and sports for all ages including an Olympic-sized swimming pool, basketball courts, running and skating. Easy access to the Hudson River Greenway provides 11 uninterrupted miles of bike and pedestrian paths spanning from Battery Park to the Little Red Lighthouse underneath the George Washington Bridge.
This property is off market, which means it's not currently listed for sale or rent on Zillow. This may be different from what's available on other websites or public sources.
