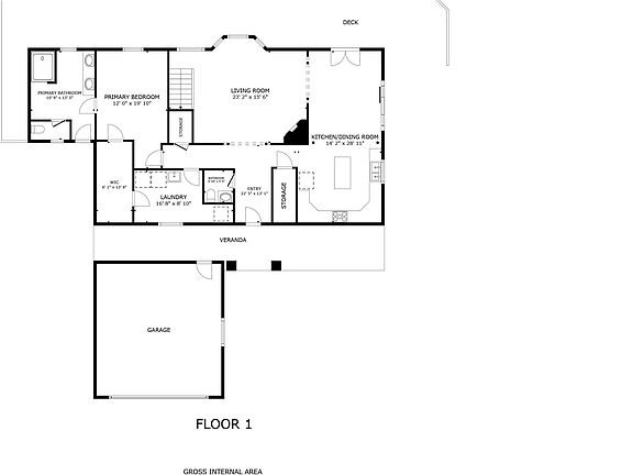
Rarely does a property like this come available in Idaho County! Enjoy true energy independence with a full solar setup(2023), backup 20KW backup generator(propane). Combined with a geothermal system for heating and cooling, conditioned crawlspace and spray foam insulation in the ceiling and walls—your power bills can run as low as $10 during certain months. Built in 2011, this newer construction offers thoughtful design and quality finishes throughout. Main level amenities include kitchen with pantry, dining room, great room, spacious laundry room attached to master closet and spacious master suite with access to hot tub. Upstairs provides 2 large bedrooms(w/ vanities), full bathroom, large office/family room and spacious bonus room over the garage. The oversized garage accommodates two full-size vehicles with plenty of room for storage. Step outside and enjoy breathtaking 270-degree views overlooking the Camas prairie with views of the Seven Devils, Gospel and Buffalo Hump Mtns—sunrises and sunsets here are heaven on earth. Entertain on the covered patio(Trex) just off the dining room, or relax on the concrete wraparound covered porch. Ample space on the property to build a shop. Additional exterior features include greenhouse, fenced orchard area, turf front yard, and additional storage shed, Full RV parking w/hookups and 7-10gpm well. Own your piece of paradise. No HOA.
Active
$849,000
659 Reservation Line Rd, Cottonwood, ID 83522
3beds
3baths
3,022sqft
Est.:
Single Family Residence
Built in 2011
4.13 Acres Lot
$-- Zestimate®
$281/sqft
$-- HOA
What's special
Dining roomAdditional storage shedConditioned crawlspaceFenced orchard areaTurf front yardGreat roomKitchen with pantry
- 10 days |
- 962 |
- 26 |
Zillow last checked: 7 hours ago
Listing updated: February 28, 2026 at 10:06pm
Listed by:
Cody Edwards 208-553-5100,
Professional Realty Services Idaho,
Bernadette Edwards 208-553-5101,
Professional Realty Services Idaho
Source: IMLS,MLS#: 98976149
Tour with a local agent
Facts & features
Interior
Bedrooms & bathrooms
- Bedrooms: 3
- Bathrooms: 3
- Main level bathrooms: 2
- Main level bedrooms: 1
Primary bedroom
- Level: Main
Bedroom 2
- Level: Upper
Bedroom 3
- Level: Upper
Dining room
- Level: Main
Family room
- Level: Upper
Kitchen
- Level: Main
Living room
- Level: Main
Office
- Level: Upper
Heating
- Forced Air, Geothermal
Cooling
- Central Air
Appliances
- Included: Electric Water Heater, Tank Water Heater, Dishwasher, Disposal, Microwave, Oven/Range Freestanding, Refrigerator, Gas Range
Features
- Bath-Master, Bed-Master Main Level, Guest Room, Family Room, Great Room, Double Vanity, Walk-In Closet(s), Loft, Walk In Shower, Breakfast Bar, Pantry, Kitchen Island, Granite Counters, Number of Baths Main Level: 2, Number of Baths Upper Level: 1, Bonus Room Level: Upper
- Flooring: Tile, Carpet, Engineered Wood Floors, Vinyl Sheet
- Windows: Skylight(s)
- Has basement: No
- Number of fireplaces: 2
- Fireplace features: Two, Propane
Interior area
- Total structure area: 3,022
- Total interior livable area: 3,022 sqft
- Finished area above ground: 3,022
- Finished area below ground: 0
Property
Parking
- Total spaces: 2
- Parking features: Attached
- Attached garage spaces: 2
- Details: Garage: 28 x28, Garage Door: 10x8
Features
- Levels: Two
- Patio & porch: Covered Patio/Deck
- Pool features: Private
- Has spa: Yes
- Spa features: Heated
- Fencing: Full,Wire
- Has view: Yes
Lot
- Size: 4.13 Acres
- Features: 1 - 4.99 AC, Garden, Views, Winter Access, Off Grid, Manual Sprinkler System
Details
- Additional structures: Shed(s)
- Parcel number: RP32N01E197955A
Construction
Type & style
- Home type: SingleFamily
- Property subtype: Single Family Residence
Materials
- Frame, HardiPlank Type, Circ./Cond - Crawl Space
- Foundation: Crawl Space
- Roof: Composition
Condition
- Year built: 2011
Utilities & green energy
- Electric: Photovoltaics Seller Owned
- Sewer: Septic Tank
- Water: Well
- Utilities for property: Broadband Internet
Green energy
- Indoor air quality: Contaminant Control
Community & HOA
Location
- Region: Cottonwood
Financial & listing details
- Price per square foot: $281/sqft
- Tax assessed value: $620,568
- Annual tax amount: $1,193
- Date on market: 2/27/2026
- Listing terms: Cash,Conventional,FHA,VA Loan
- Ownership: Fee Simple,Fractional Ownership: No
Estimated market value
Not available
Estimated sales range
Not available
Not available
Price history
Price history
Price history is unavailable.
Public tax history
Public tax history
| Year | Property taxes | Tax assessment |
|---|---|---|
| 2025 | $1,194 -5.3% | $620,568 |
| 2024 | $1,260 +17.3% | $620,568 +2.6% |
| 2023 | $1,075 -34.1% | $604,699 +16.2% |
| 2022 | $1,631 +2.9% | $520,283 |
| 2021 | $1,585 +3.1% | $520,283 +43.9% |
| 2020 | $1,537 | $361,562 |
| 2019 | $1,537 +3.2% | $361,562 +6.5% |
| 2018 | $1,489 -2.2% | $339,483 |
| 2017 | $1,523 -5.1% | $339,483 |
| 2016 | $1,604 | $339,483 |
| 2014 | $1,604 | -- |
| 2013 | -- | -- |
Find assessor info on the county website
BuyAbility℠ payment
Est. payment
$4,295/mo
Principal & interest
$4054
Property taxes
$241
Climate risks
Neighborhood: 83522
Nearby schools
GreatSchools rating
- 9/10Prairie Elementary SchoolGrades: PK-6Distance: 3 mi
- 9/10Prairie High SchoolGrades: 7-12Distance: 4.4 mi
Schools provided by the listing agent
- Elementary: Prairie - Idaho County
- Middle: Prairie - Idaho County
- High: Prairie - Idaho County
- District: Cottonwood School District #242
Source: IMLS. This data may not be complete. We recommend contacting the local school district to confirm school assignments for this home.



