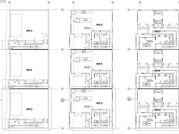
Build READY LOTS WITH ALL SDC & PERMITS PAID FOR. READY TO START SHOVELING DIRT. 3 attached Townhomes ready to sell individually. Each unit aprpox. 2525 sqft. 3 bedroom / 2.5 bath. Great neighborhood. CLose to downtown, the max and much much more. Ready for you to walk into your own sweet equity once you build the project. Call today for all the information and get your contractor ready to build!
Active
$475,000
6430 Caldwell Rd, Gladstone, OR 97027
--beds
0baths
--sqft
Unimproved Land, Single Family Residence
Built in ----
-- sqft lot
$-- Zestimate®
$--/sqft
$-- HOA
What's special
- 28 days |
- 192 |
- 8 |
Zillow last checked: 7 hours ago
Listing updated: February 11, 2026 at 02:58am
Listed by:
Valerie Hunter damien376@comcast.net,
H & H Preferred Real Estate
Source: RMLS (OR),MLS#: 489696706
Facts & features
Interior
Bedrooms & bathrooms
- Bathrooms: 0
Property
Lot
- Features: Cleared, Level, SqFt 7000 to 9999
Details
- Parcel number: 05039487
- Zoning: RS
Community & HOA
HOA
- Has HOA: No
Location
- Region: Gladstone
Financial & listing details
- Tax assessed value: $178,605
- Annual tax amount: $1,958
- Date on market: 2/10/2026
- Listing terms: Cash,Conventional,Owner Will Carry
- Road surface type: Paved
Estimated market value
Not available
Estimated sales range
Not available
Not available
Price history
Price history
| Date | Event | Price |
|---|---|---|
| 2/11/2026 | Listed for sale | $475,000+216.7% |
Source: | ||
| 10/30/2023 | Sold | $150,000 |
Source: | ||
| 9/29/2023 | Pending sale | $150,000 |
Source: | ||
Public tax history
Public tax history
| Year | Property taxes | Tax assessment |
|---|---|---|
| 2025 | $1,958 +2.9% | $97,196 +3% |
| 2024 | $1,904 | $94,366 |
Find assessor info on the county website
BuyAbility℠ payment
Estimated monthly payment
Boost your down payment with 6% savings match
Earn up to a 6% match & get a competitive APY with a *. Zillow has partnered with to help get you home faster.
Learn more*Terms apply. Match provided by Foyer. Account offered by Pacific West Bank, Member FDIC.Climate risks
Neighborhood: 97027
Nearby schools
GreatSchools rating
- NAGladstone Center For Children And FamiliesGrades: PK-KDistance: 0.6 mi
- 7/10Walter L Kraxberger Middle SchoolGrades: 6-8Distance: 0.6 mi
- 6/10Gladstone High SchoolGrades: 9-12Distance: 0.4 mi
Schools provided by the listing agent
- Elementary: Oak Grove
- Middle: Kraxberger
- High: Gladstone
Source: RMLS (OR). This data may not be complete. We recommend contacting the local school district to confirm school assignments for this home.








