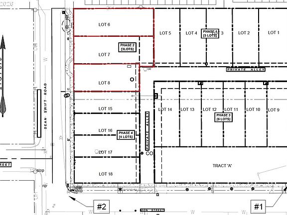
Three mixed residential ("live-work") zoned bare lots for sale. These lots are flat and ready to build with paving, curbs, sidewalks, water, sewer, gas, and electric. The special zoning for these lots permits building "duplexes" with street-level low impact business and additional level(s) above for homes with the potential to rent the business levels and homes together or separately. The subdivision is also approved for attached or detached townhomes so buildings on separate lots may be joined or partially joined at the lot lines to reduce setback requirements and allow for 60% lot coverage. The front entrances of the structures would be on Dean Swift to the west with a 5' setback and a driveway access from Gracie Lane with an 18' setback. Lot 809 and 810 are larger to accommodate driveways with access for 809 through the driveway of 810 (see tax lot map for details). Lot 171234DC00809 is 4,180 sq ft measuring 110' x 38', Lot 171234DC00810 is 4,260 sq ft measuring 110' x 38' + 4' x 20', and Lot 171234DC00811 is 3,420 sq ft measuring 90' x 38' 62062 Dean Swift Rd is the old tract address being used for the ease of location of these three developed bare lots.
Active
$975,000
62062 Dean Swift Rd, Bend, OR 97701
--beds
0baths
0.28Acres
Unimproved Land
Built in ----
0.28 Acres Lot
$-- Zestimate®
$--/sqft
$-- HOA
What's special
Developed bare lots
- 4 days |
- 58 |
- 1 |
Zillow last checked: 8 hours ago
Listing updated: February 25, 2026 at 02:38am
Listed by:
Jonathan Minerick 888-400-2513,
homecoin.com
Source: RMLS (OR),MLS#: 788015724
Facts & features
Interior
Bedrooms & bathrooms
- Bathrooms: 0
Property
Features
- Has view: Yes
- View description: City, Mountain(s), Territorial
Lot
- Size: 0.28 Acres
- Features: Cleared, Graded, Level, SqFt 10000 to 14999
Details
- Additional parcels included: 282260,282261
- Parcel number: 282259
- Zoning: RM
Utilities & green energy
- Utilities for property: Cable Available, Electricity Available, Natural Gas Available, Phone Available, Water Available, Cable Connected
Green energy
- Energy generation: Solar
Community & HOA
HOA
- Has HOA: No
Location
- Region: Bend
Financial & listing details
- Tax assessed value: $247,820
- Annual tax amount: $1,012
- Date on market: 2/25/2026
- Listing terms: Cash
- Road surface type: Paved
Estimated market value
Not available
Estimated sales range
Not available
Not available
Price history
Price history
| Date | Event | Price |
|---|---|---|
| 2/25/2026 | Listed for sale | $975,000+371% |
Source: | ||
| 2/1/2021 | Listing removed | -- |
Source: | ||
| 8/6/2020 | Price change | $207,000-1% |
Source: Bend River Realty Inc #202002923 Report a problem | ||
| 7/4/2020 | Price change | $209,000-16.4% |
Source: Bend River Realty Inc #202002923 Report a problem | ||
| 5/8/2020 | Price change | $250,000+0.4% |
Source: Bend River Realty Inc #202002923 Report a problem | ||
| 4/5/2020 | Listed for sale | $249,000-17% |
Source: Bend River Realty Inc #202002923 Report a problem | ||
| 10/30/2014 | Sold | $300,000 |
Source: | ||
| 7/15/2014 | Listing removed | $300,000 |
Source: Bend River Realty Inc #201405252 Report a problem | ||
| 6/4/2014 | Listed for sale | $300,000+36.4% |
Source: Bend River Realty Inc #201405252 Report a problem | ||
| 3/3/2005 | Sold | $220,000+46.7% |
Source: Agent Provided Report a problem | ||
| 1/25/2005 | Sold | $150,000 |
Source: Agent Provided Report a problem | ||
Public tax history
Public tax history
| Year | Property taxes | Tax assessment |
|---|---|---|
| 2017 | -- | $60,089 -53.6% |
| 2016 | $1,973 | $129,480 +3% |
| 2015 | $1,973 +6% | $125,710 +3% |
| 2014 | $1,862 | $122,050 +3% |
| 2013 | -- | $118,500 +3% |
| 2012 | -- | $115,050 +3% |
| 2011 | -- | $111,700 +3% |
| 2010 | -- | $108,450 +3% |
| 2009 | -- | $105,300 +3% |
| 2008 | -- | $102,240 +3% |
| 2007 | -- | $99,270 +6.1% |
| 2005 | -- | $93,580 +6.1% |
| 2003 | -- | $88,219 -17.9% |
| 2001 | -- | $107,425 +5.9% |
| 2000 | -- | $101,395 |
Find assessor info on the county website
BuyAbility℠ payment
Estimated monthly payment
Boost your down payment with 6% savings match
Earn up to a 6% match & get a competitive APY with a *. Zillow has partnered with to help get you home faster.
Learn more*Terms apply. Match provided by Foyer. Account offered by Pacific West Bank, Member FDIC.Climate risks
Neighborhood: Larkspur
Nearby schools
GreatSchools rating
- 5/10Bear Creek Elementary SchoolGrades: K-5Distance: 0.8 mi
- 7/10Pilot Butte Middle SchoolGrades: 6-8Distance: 1 mi
- 5/10Bend Senior High SchoolGrades: 9-12Distance: 1.2 mi
Schools provided by the listing agent
- Elementary: Bear Creek
- Middle: Pilot Butte
- High: Bend
Source: RMLS (OR). This data may not be complete. We recommend contacting the local school district to confirm school assignments for this home.





