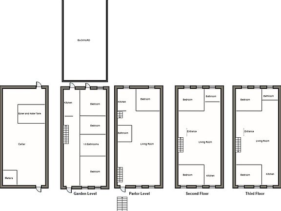
Stunning 4-story, 3-family brownstone Townhouse on the highly desirable and trendy Madison Street in Bed-Stuy is just hitting the market! With more than 3,600 square feet of living space, spanning 4-stories, this is a rare opportunity for investors and end-users alike. Complete with working fireplaces on each and every floor, original high-ceilings with lovely hand-carved wood accents, not to mention exposed brick tastefully highlighting each unit on every level, this is an exquisite property. Numerous tall windows allow for an abundance of sunlight pouring across the gorgeous glossy hardwood floors. This legal 3-family home truly behaves like a 4-family townhouse; with a total of 7 bedrooms and a bathroom on every floor and one in the basement for a whopping 5 in all, the possibilities are limitless; just the sheer square footage of living space alone is staggering! Recent upgrades render the bathrooms newly tiled and spotless, and the kitchens are remarkable and ready to go as well! The front of the property is tastefully designed and the backyard is spacious and modern, recently redone with two-tone stone pavers, dotted with a handful of red rose bushes, making the space just perfect for outdoor, open-air gatherings! Conveniently located just a couple of blocks from the Gates Avenue J and M trains, and the trendy hot-spots like Saraghina, and just a short walk to Tompkins Park, this is a true gem! Call today!
This property is off market, which means it's not currently listed for sale or rent on Zillow. This may be different from what's available on other websites or public sources.



