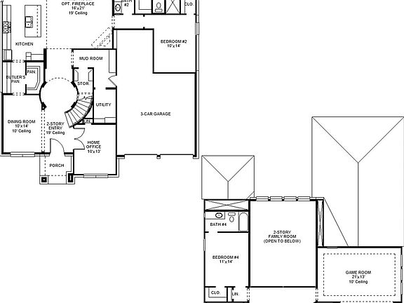
Two-story rotunda entry features curved staircase. Formal dining room and home office with French doors frame entry. Two-story family room with wall of windows opens to kitchen and morning area. Kitchen features large walk-in pantry, a 5-burner gas cooktop, Butler's pantry and island with built-in seating space. First-floor primary suite includes bedroom with wall of windows. Dual vanities, a freestanding tub, separate glass-enclosed shower and two walk-in closets in primary bath. A second bedroom is downstairs. Upstairs highlights a game room, media room and guest suite with private bath. Extended covered backyard patio. Mud room off three-car garage.
Pending
$736,900
5603 Violet Ridge Dr, Richmond, TX 77469
4beds
3,650sqft
Est.:
Single Family Residence
Built in 2026
8,311.25 Square Feet Lot
$-- Zestimate®
$202/sqft
$63/mo HOA
What's special
- 38 days |
- 4 |
- 0 |
Zillow last checked: 7 hours ago
Listing updated: February 26, 2026 at 02:02am
Listed by:
Lee Jones TREC #0439466 713-948-6666,
Perry Homes Realty, LLC
Source: HAR,MLS#: 69521674
Facts & features
Interior
Bedrooms & bathrooms
- Bedrooms: 4
- Bathrooms: 4
- Full bathrooms: 4
Rooms
- Room types: Utility Room
Primary bathroom
- Features: Full Secondary Bathroom Down, Primary Bath: Double Sinks, Primary Bath: Separate Shower, Primary Bath: Soaking Tub, Secondary Bath(s): Tub/Shower Combo
Kitchen
- Features: Breakfast Bar, Kitchen Island, Kitchen open to Family Room, Pantry, Walk-in Pantry
Heating
- Natural Gas
Cooling
- Ceiling Fan(s), Electric
Appliances
- Included: ENERGY STAR Qualified Appliances, Disposal, Oven, Microwave, Gas Cooktop, Gas Range, Dishwasher
- Laundry: Electric Dryer Hookup, Washer Hookup
Features
- Formal Entry/Foyer, Prewired for Alarm System, 2 Bedrooms Down, 2 Bedrooms Up, Primary Bed - 1st Floor, Walk-In Closet(s)
- Flooring: Carpet, Wood
Interior area
- Total structure area: 3,650
- Total interior livable area: 3,650 sqft
Property
Parking
- Total spaces: 3
- Parking features: Attached
- Attached garage spaces: 3
Features
- Stories: 2
- Patio & porch: Covered
- Exterior features: Sprinkler System
- Fencing: Back Yard
Lot
- Size: 8,311.25 Square Feet
- Dimensions: 60 x 138
- Features: Back Yard, Corner Lot, Subdivided, 0 Up To 1/4 Acre
Construction
Type & style
- Home type: SingleFamily
- Architectural style: Traditional
- Property subtype: Single Family Residence
Materials
- Brick
- Foundation: Slab
- Roof: Composition
Condition
- New construction: Yes
- Year built: 2026
Details
- Builder name: Perry Homes
Utilities & green energy
- Sewer: Public Sewer
- Water: Public
Green energy
- Green verification: ENERGY STAR Certified Homes
- Energy efficient items: Thermostat, Lighting
Community & HOA
Community
- Security: Prewired for Alarm System
- Subdivision: Stonecreek Estates
HOA
- Has HOA: Yes
- Amenities included: Playground, Splash Pad, Tennis Court(s), Trail(s)
- HOA fee: $750 annually
Location
- Region: Richmond
Financial & listing details
- Price per square foot: $202/sqft
- Date on market: 2/24/2026
- Listing terms: Cash,Conventional,FHA,VA Loan
- Road surface type: Concrete
Estimated market value
Not available
Estimated sales range
Not available
$3,316/mo
Price history
Price history
| Date | Event | Price |
|---|---|---|
| 2/24/2026 | Pending sale | $736,900$202/sqft |
Source: | ||
Public tax history
Public tax history
Tax history is unavailable.BuyAbility℠ payment
Est. payment
$4,816/mo
Principal & interest
$3642
Property taxes
$1111
HOA Fees
$63
More affordability tools
Climate risks
Neighborhood: 77469
Nearby schools
GreatSchools rating
- 9/10Don Carter Elementary SchoolGrades: PK-5Distance: 0.4 mi
- 8/10Reading Junior High SchoolGrades: 6-8Distance: 2 mi
- 8/10George Ranch High SchoolGrades: 9-12Distance: 2.1 mi
Schools provided by the listing agent
- Elementary: Carter Elementary School
- Middle: Reading Junior High School
- High: George Ranch High School
Source: HAR. This data may not be complete. We recommend contacting the local school district to confirm school assignments for this home.
Local experts in 77469
- Texas
- Fort Bend County
- Rosenberg
- 77469
- 5603 Violet Ridge Dr





