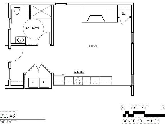
Welcome to the Residences at the General Samuel Strong House Built in 1796, the General Samuel Strong House is an example of late Georgian/early Federal period of American architecture and was listed in the National Register of Historic Places in 1973. Since 2022, this landmark building has been in the process of being carefully restored and revived for modern use. Today, the picturesque white clapboard house perched on West Main Street in Vergennes consists of 6 newly-constructed residential apartments. Here, historic architectural elements have been carefully preserved and integrated into each apartment's elegant layout. Each apartment has modern conveniences: environmentally-friendly, energy-efficient appliances; heat pumps for year-round comfort; supplemental direct-vent heaters; large windows; extensive thermal and sound insulation; and carefully preserved architectural elements combined with thoughtful layout. Each apartment has its own tenant-reserved off-street parking spot at the building. All units are smoke-free. Enjoy local amenities including fine dining, shopping, farmers' markets, and recreational activities on the water all just a short distance from your home. Cultural amenities include the Bixby Library and the Vergennes Opera House, which features live music, plays, and special events. Centrally located, Vergennes offers an easy commute to Burlington and Middlebury. Available Now - Apt. 3 This studio apartment apartment with its open floor plan features tall windows, high ceilings, and the rich, traditional wood floors located throughout the space. The living space is accentuated by an original brick hearth (not functioning) and mantle. Elegant, thoughtful lighting has been installed throughout. The apartment includes brand-new, energy-efficient appliances including a full-sized refrigerator, gas range with convection oven with a direct-vent overhead hood, and dishwasher. The kitchen features a deep stainless-steel sink with commercial-style faucet, new countertops, and new custom hardwood cabinets. The sparkling new bathroom includes a large walk-in, custom-tiled shower with rainfall showerhead and hand sprayer, toilet, pedestal sink, and metal fixtures. There is also a brand-new washer and dryer within a closet inside the apartment. Modern, energy-efficient heat pumps provide warm, even heat in the colder months and cool air in the summer. Monthly Rent is $1,575.00 which includes on-site parking for one vehicle, landscaping, snow removal, water, and sewer. Utilities (electricity, natural gas, and internet) are the responsibility of the tenant. We require a one-year lease commitment. We will consider applicants who own pets. First month's rent, security deposit and applicable pet deposit are required at lease signing. There is no smoking or vaping, including cannabis, in or nearby the building. Application Process: For next steps, please click on the "Contact Us" button below. Please note, you will be requested to provide information about the proposed tenants (including pets), employment, tenant history and familiarity with the location prior to scheduling a showing. Thank you.
This property is off market, which means it's not currently listed for sale or rent on Zillow. This may be different from what's available on other websites or public sources.


