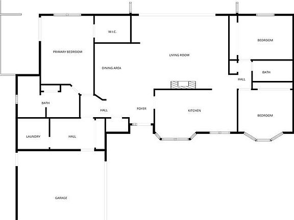
Well-built single-story home on nearly an acre in Berkeley Hills featuring a vaulted great room with stone fireplace, large kitchen, tankless water heater, 2016 HVAC system, Generac home generator, and a garage equipped with extensive storage cabinets and epoxy flooring. The split floor plan provides a private, oversized primary suite with direct access to the rear deck, while a large screened porch and expansive open deck overlook the amazing fenced backyard with multiple powered gates for convenient access. The property also includes outdoor storage/workshop space and mature landscaping. Estate sale sold as-is—solid layout with room for updates to add value and a location convenient to shopping, parks, and major routes.
Pending
$475,000
4694 Fairway Rd, Duluth, GA 30096
3beds
2,152sqft
Est.:
Single Family Residence, Residential
Built in 1985
0.95 Acres Lot
$463,400 Zestimate®
$221/sqft
$-- HOA
What's special
- 82 days |
- 193 |
- 6 |
Zillow last checked: 7 hours ago
Listing updated: February 06, 2026 at 10:55am
Listing Provided by:
Stacey Dodson,
Keller Williams North Atlanta 770-663-7291,
Mike Dodson,
Keller Williams North Atlanta
Source: FMLS GA,MLS#: 7691470
Facts & features
Interior
Bedrooms & bathrooms
- Bedrooms: 3
- Bathrooms: 2
- Full bathrooms: 2
- Main level bathrooms: 2
- Main level bedrooms: 3
Rooms
- Room types: Dining Room, Great Room, Laundry, Master Bathroom, Workshop
Primary bedroom
- Features: Master on Main, Oversized Master, Sitting Room
- Level: Master on Main, Oversized Master, Sitting Room
Bedroom
- Features: Master on Main, Oversized Master, Sitting Room
Primary bathroom
- Features: Double Vanity, Shower Only, Skylights
Dining room
- Features: Open Concept
Kitchen
- Features: Breakfast Bar, Eat-in Kitchen, Kitchen Island, Solid Surface Counters, Wine Rack
Heating
- Central, Natural Gas
Cooling
- Central Air, Electric
Appliances
- Included: Dishwasher, Dryer, Electric Cooktop, Microwave, Refrigerator, Washer
- Laundry: Laundry Room, Main Level
Features
- Cathedral Ceiling(s), Double Vanity, High Speed Internet, Recessed Lighting, Vaulted Ceiling(s), Walk-In Closet(s)
- Flooring: Carpet, Ceramic Tile, Hardwood, Wood
- Windows: Insulated Windows
- Basement: None
- Number of fireplaces: 1
- Fireplace features: Family Room, Gas Log, Gas Starter, Glass Doors, Great Room
- Common walls with other units/homes: No Common Walls
Interior area
- Total structure area: 2,152
- Total interior livable area: 2,152 sqft
- Finished area above ground: 2,152
Video & virtual tour
Property
Parking
- Total spaces: 2
- Parking features: Attached, Garage, Garage Door Opener, Garage Faces Side, Kitchen Level, Level Driveway
- Attached garage spaces: 2
- Has uncovered spaces: Yes
Accessibility
- Accessibility features: None
Features
- Levels: One
- Stories: 1
- Patio & porch: Screened, Side Porch
- Exterior features: Awning(s), Garden, Rain Gutters, Rear Stairs, Storage, No Dock
- Pool features: None
- Spa features: None
- Fencing: Back Yard,Fenced,Privacy,Wrought Iron
- Has view: Yes
- View description: Neighborhood
- Waterfront features: None
- Body of water: None
Lot
- Size: 0.95 Acres
- Features: Back Yard, Corner Lot, Front Yard, Landscaped, Sprinklers In Front, Sprinklers In Rear
Details
- Additional structures: Outbuilding, Shed(s), Workshop
- Parcel number: R6228 045
- Special conditions: Probate Listing
- Other equipment: Generator, Irrigation Equipment
- Horse amenities: None
Construction
Type & style
- Home type: SingleFamily
- Architectural style: Contemporary,Ranch
- Property subtype: Single Family Residence, Residential
Materials
- Wood Siding, Other
- Foundation: Slab
- Roof: Composition,Ridge Vents,Shingle
Condition
- Resale
- New construction: No
- Year built: 1985
Utilities & green energy
- Electric: 110 Volts, 220 Volts
- Sewer: Septic Tank
- Water: Public
- Utilities for property: Cable Available, Electricity Available, Natural Gas Available, Phone Available, Underground Utilities, Water Available
Green energy
- Energy efficient items: None
- Energy generation: None
Community & HOA
Community
- Features: Near Schools, Near Shopping, Park, Restaurant
- Security: Smoke Detector(s)
- Subdivision: Berkeley Hills
HOA
- Has HOA: No
Location
- Region: Duluth
Financial & listing details
- Price per square foot: $221/sqft
- Tax assessed value: $420,700
- Annual tax amount: $6,293
- Date on market: 12/22/2025
- Cumulative days on market: 43 days
- Electric utility on property: Yes
- Road surface type: Asphalt
Estimated market value
$463,400
$440,000 - $487,000
$2,536/mo
Price history
Price history
| Date | Event | Price |
|---|---|---|
| 1/20/2026 | Pending sale | $475,000$221/sqft |
Source: | ||
| 12/22/2025 | Listed for sale | $475,000+265.4%$221/sqft |
Source: | ||
| 8/1/1986 | Sold | $130,000$60/sqft |
Source: Agent Provided Report a problem | ||
Public tax history
Public tax history
| Year | Property taxes | Tax assessment |
|---|---|---|
| 2025 | $6,294 +551.6% | $168,280 +5.9% |
| 2024 | $966 +19% | $158,920 +15.3% |
| 2023 | $812 | $137,800 |
| 2022 | -- | $137,800 +27.9% |
| 2021 | -- | $107,760 |
| 2020 | -- | $107,760 |
| 2019 | -- | $107,760 +22% |
| 2018 | -- | $88,360 |
| 2016 | $881 -0.6% | $88,360 +21.4% |
| 2015 | $887 | $72,800 |
| 2014 | $887 +0.6% | $72,800 |
| 2013 | $882 | $72,800 |
| 2012 | -- | $72,800 |
| 2011 | -- | $72,800 |
| 2010 | -- | $72,800 |
| 2009 | -- | $72,800 +16.2% |
| 2007 | -- | $62,640 |
| 2006 | -- | $62,640 |
| 2005 | -- | $62,640 |
| 2004 | $743 -0.1% | $62,640 |
| 2003 | $743 -46.1% | $62,640 +8.5% |
| 2002 | $1,379 +4.8% | $57,732 +12.5% |
| 2001 | $1,316 | $51,320 |
Find assessor info on the county website
BuyAbility℠ payment
Est. payment
$2,700/mo
Principal & interest
$2308
Property taxes
$392
More affordability tools
Climate risks
Neighborhood: 30096
Nearby schools
GreatSchools rating
- 5/10Beaver Ridge Elementary SchoolGrades: PK-5Distance: 0.6 mi
- 5/10Summerour Middle SchoolGrades: 6-8Distance: 1.9 mi
- 5/10Norcross High SchoolGrades: 9-12Distance: 3 mi
Schools provided by the listing agent
- Elementary: Beaver Ridge
- Middle: Summerour
- High: Norcross
Source: FMLS GA. This data may not be complete. We recommend contacting the local school district to confirm school assignments for this home.




