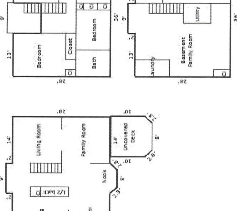
ATTN: Open House Canceled: 11/19/17 - Home is now Under Contract. Beautifully Maintained Colonial in Frenchtown Woods. This 4 bedroom, 2.1 bath home shows great throughout and backs to open space. Enter into a 2 story foyer that leads to a spacious kitchen that opens to the fam room. The fam room features a gas fireplace and sliders to a rear deck. The upper level includes 4 bedrooms. The main bedroom includes a full bath with double vanity, garden tub and shower stall. Other amenities include a 2 car garage, and a large shed. Home is in great condition and being sold AS-IS!!!
This property is off market, which means it's not currently listed for sale or rent on Zillow. This may be different from what's available on other websites or public sources.


