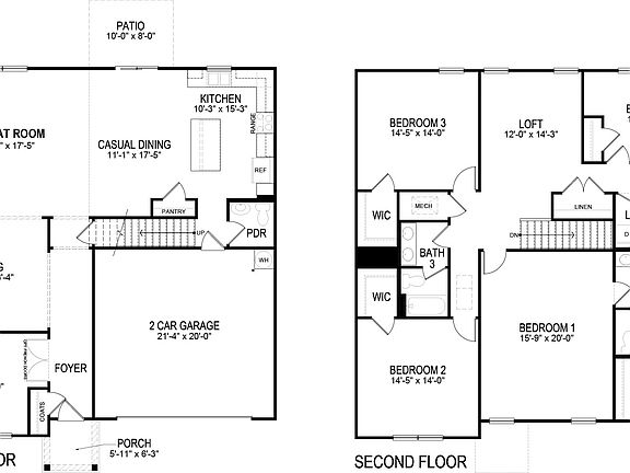
Great community in a great location! Neighborhood will have sidewalks, a walking trail, and a fenced-in dog park! Prime location for all things "Cleveland! Buyer to verify all information.
This property is off market, which means it's not currently listed for sale or rent on Zillow. This may be different from what's available on other websites or public sources.



