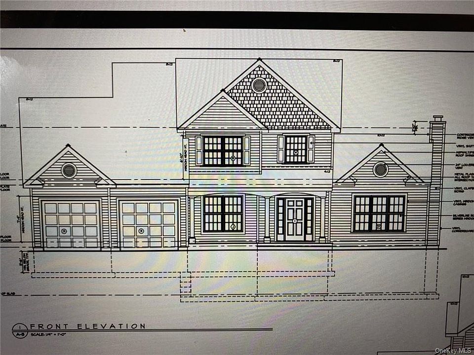
Construction has begun on this beautiful home situated on a level, partly wooded lot in a new community of upscale homes with municipal water and sewer. The builder spares no expense with design, energy efficiencies and finishes when building. The oak floors run throughout the house, and thee are many color choices for the carpet in the bedrooms. The main level has an open concept with a cathedral ceilings in the family room and a fireplace that is surrounded by stacked stone. The kitchen has upgraded cabinetry with a choice of painted or stained finishes. A farm sink is standard and the stainless steel appliances includes micro, d/w and range. The master suite comes complete with a sitting room, tray ceiling, large walk in closet and luxurious bath with a tiled shower and a soaking tub. All the baths are tiled . The three additional bedrooms are spacious. The basement comes complete with a large egress window in order to allow for futures finishing.
This property is off market, which means it's not currently listed for sale or rent on Zillow. This may be different from what's available on other websites or public sources.



