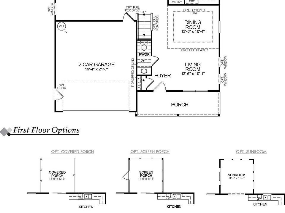
The Wilmington is a two-story, four-bedroom, two-and-a-half-bath home with a formal living room, formal dining room, spacious family room, and kitchen with island and pantry. The second floor features all four bedrooms, including the primary suite, a separate laundry room, a hall bath, and a loft area. Options available to personalize this home include a dedicated home office, gas fireplace, covered porch, screen porch, or sunroom.
Active contingent
$408,535
222 Palfrey Dr, Ridgeville, SC 29472
4beds
2,565sqft
Est.:
Single Family Residence
Built in 2025
7,840.8 Square Feet Lot
$-- Zestimate®
$159/sqft
$-- HOA
What's special
Loft areaKitchen with islandSpacious family roomPrimary suiteSeparate laundry roomFormal dining room
- 304 days |
- 30 |
- 0 |
Zillow last checked: 7 hours ago
Listing updated: November 14, 2025 at 05:27am
Listed by:
Eastwood Homes
Source: CTMLS,MLS#: 25014599
Facts & features
Interior
Bedrooms & bathrooms
- Bedrooms: 4
- Bathrooms: 3
- Full bathrooms: 2
- 1/2 bathrooms: 1
Rooms
- Room types: Family Room, Loft, Office, Dining Room, Breakfast Room, Family, Foyer, Laundry, Separate Dining
Heating
- Central, Electric, Heat Pump
Cooling
- Central Air
Appliances
- Laundry: Electric Dryer Hookup, Washer Hookup, Laundry Room
Features
- Ceiling - Smooth, High Ceilings, Kitchen Island, Walk-In Closet(s), Entrance Foyer
- Flooring: Carpet, Ceramic Tile, Luxury Vinyl, Vinyl
- Number of fireplaces: 1
- Fireplace features: Family Room, One
Interior area
- Total structure area: 2,565
- Total interior livable area: 2,565 sqft
Property
Parking
- Total spaces: 2
- Parking features: Garage, Attached
- Attached garage spaces: 2
Features
- Levels: Two
- Stories: 2
- Patio & porch: Front Porch, Screened
- Exterior features: Rain Gutters
- Waterfront features: Pond
Lot
- Size: 7,840.8 Square Feet
- Features: 0 - .5 Acre, Interior Lot, Level
Details
- Special conditions: 10 Yr Warranty
Construction
Type & style
- Home type: SingleFamily
- Architectural style: Traditional
- Property subtype: Single Family Residence
Materials
- Stone Veneer, Vinyl Siding
- Foundation: Slab
- Roof: Fiberglass
Condition
- New construction: Yes
- Year built: 2025
Details
- Warranty included: Yes
Utilities & green energy
- Sewer: Public Sewer
- Water: Public
- Utilities for property: Dorchester Cnty Water and Sewer Dept, Edisto Electric
Green energy
- Green verification: HERS Index Score
Community & HOA
Community
- Features: Walk/Jog Trails
- Subdivision: Parker's Preserve
Location
- Region: Ridgeville
Financial & listing details
- Price per square foot: $159/sqft
- Date on market: 5/27/2025
- Listing terms: Cash,Conventional,FHA,USDA Loan,VA Loan
Estimated market value
Not available
Estimated sales range
Not available
$3,036/mo
Price history
Price history
| Date | Event | Price |
|---|---|---|
| 5/27/2025 | Listed for sale | $408,535$159/sqft |
Source: | ||
Public tax history
Public tax history
Tax history is unavailable.BuyAbility℠ payment
Est. payment
$2,236/mo
Principal & interest
$2042
Property taxes
$194
More affordability tools
Climate risks
Neighborhood: 29472
Nearby schools
GreatSchools rating
- 9/10Beech Hill Elementary SchoolGrades: PK-5Distance: 4.4 mi
- 4/10Gregg Middle SchoolGrades: 6-8Distance: 4.9 mi
- 6/10Summerville High SchoolGrades: 9-12Distance: 4.9 mi
Schools provided by the listing agent
- Elementary: Sand Hill
- Middle: East Edisto
- High: Summerville
Source: CTMLS. This data may not be complete. We recommend contacting the local school district to confirm school assignments for this home.
Local experts in 29472
- South Carolina
- Dorchester County
- Ridgeville
- 29472
- 222 Palfrey Dr








