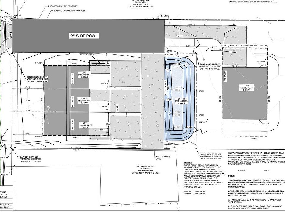
Fully engineered and ready for building permits upon transfer to the buyer. 4 lots total, 3 connected townhouse style lots fronting True Apple Way, with 1 single family dwelling lot behind. County approved and DOH access approved. Currently has an occupied mobile home rented at $850/month.
Lot/land
$140,000
184 True Apple Way, Inwood, WV 25428
--beds
--baths
0.5Acres
Unimproved Land
Built in ----
0.5 Acres Lot
$-- Zestimate®
$--/sqft
$-- HOA
What's special
- 49 days |
- 127 |
- 7 |
Zillow last checked: 7 hours ago
Listing updated: February 03, 2026 at 05:32pm
Listed by:
Jordan Butts 304-702-1204,
Burch Real Estate Group, LLC
Source: Bright MLS,MLS#: WVBE2048034
Facts & features
Property
Lot
- Size: 0.5 Acres
Details
- Parcel number: 07 6J011300000000
- Zoning: 108
- Special conditions: Standard
Utilities & green energy
- Sewer: Public Sewer
- Water: Public
Community & HOA
HOA
- Has HOA: No
Location
- Region: Inwood
- Municipality: Mill Creek District
Financial & listing details
- Tax assessed value: $18,780
- Annual tax amount: $457
- Date on market: 2/2/2026
- Listing agreement: Exclusive Right To Sell
- Ownership: Fee Simple
Estimated market value
Not available
Estimated sales range
Not available
$1,267/mo
Price history
Price history
| Date | Event | Price |
|---|---|---|
| 2/2/2026 | Listed for sale | $140,000+105% |
Source: | ||
| 4/2/2024 | Sold | $68,277+42.2% |
Source: | ||
| 3/19/2024 | Pending sale | $48,000-71.7% |
Source: | ||
| 5/19/2008 | Listing removed | $169,900 |
Source: Homes & Land #BE6331488 Report a problem | ||
| 4/26/2008 | Listed for sale | $169,900 |
Source: Homes & Land #BE6331488 Report a problem | ||
Public tax history
Public tax history
| Year | Property taxes | Tax assessment |
|---|---|---|
| 2025 | $457 +185.8% | $18,780 +44.2% |
| 2024 | $160 -2.9% | $13,020 |
| 2023 | $165 +10.1% | $13,020 +1.4% |
| 2022 | $149 | $12,840 +1.9% |
| 2021 | -- | $12,600 +1% |
| 2020 | -- | $12,480 +1% |
| 2019 | -- | $12,360 +25.6% |
| 2018 | -- | $9,840 +1.9% |
| 2017 | -- | $9,660 |
| 2016 | -- | $9,660 +0.6% |
| 2015 | -- | $9,600 |
| 2014 | -- | $9,600 +0.6% |
| 2013 | -- | $9,540 +0.6% |
| 2012 | -- | $9,480 -13.2% |
| 2011 | -- | $10,920 |
| 2010 | -- | $10,920 +2.8% |
| 2009 | -- | $10,620 |
| 2008 | -- | $10,620 -2.2% |
| 2007 | -- | $10,860 +2.3% |
| 2006 | -- | $10,620 -35.4% |
| 2005 | -- | $16,440 +38.4% |
| 2004 | -- | $11,880 +5.9% |
| 2003 | -- | $11,220 |
| 2002 | -- | $11,220 -42.5% |
| 2001 | -- | $19,500 |
Find assessor info on the county website
BuyAbility℠ payment
Estimated monthly payment
All calculations are estimates and provided by Zillow, Inc. for informational purposes only. Actual amounts may vary.
HOA fees may include property taxes on listings classified as Co-Ops. Contact the listing agent and/or owner for fee details.
Mortgage interest rates are dependent on a number of factors, including credit score, down payment, and repayment length. Interest rate data provided by Zillow Group Marketplace, Inc. as of 1/1/1970 from various mortgage lenders with which we have lead or other similar arrangements; the Estimated Payment is an average of those rates.
See how much you could borrow to make a competitive offer.
Boost your down payment with 6% savings match
Earn up to a 6% match & get a competitive APY with a *. Zillow has partnered with to help get you home faster.
Learn more*Terms apply. Match provided by Foyer. Account offered by Pacific West Bank, Member FDIC.Climate risks
Neighborhood: 25428
Nearby schools
GreatSchools rating
- NAInwood Primary SchoolGrades: PK-2Distance: 0.2 mi
- 5/10Musselman Middle SchoolGrades: 6-8Distance: 0.8 mi
- 8/10Musselman High SchoolGrades: 9-12Distance: 0.5 mi
Schools provided by the listing agent
- District: Berkeley County Schools
Source: Bright MLS. This data may not be complete. We recommend contacting the local school district to confirm school assignments for this home.
Local experts in 25428
- West Virginia
- Berkeley County
- Inwood
- 25428
- 184 True Apple Way






