An opportunity awaits at 1625 King Mill Road in Mcdonough, Georgia, United States, where a substantial residential property, built in 1985, encompasses 3222 square feet of living area. Encompassing a generous 3222 square feet of living area, this residential property provides an expansive canvas for personalized living. The substantial dimensions offer considerable flexibility for various arrangements, creating an environment where comfort and individual preferences can truly flourish. Constructed in 1985, this dwelling possesses the enduring appeal of an established residence, offering a foundation upon which new memories are ready to be created. This residential property offers a distinctive opportunity to cultivate a refined living experience within an expansive and established setting.
Active
$405,000
1625 King Mill Rd, McDonough, GA 30252
5beds
4,938sqft
Est.:
Single Family Residence
Built in 1985
2.59 Acres Lot
$397,200 Zestimate®
$82/sqft
$-- HOA
What's special
- 4 days |
- 853 |
- 40 |
Zillow last checked: 7 hours ago
Listing updated: March 26, 2026 at 09:09pm
Listed by:
Marshall Wagner 404-316-8106,
Rock River Realty LLC
Source: GAMLS,MLS#: 10717721
Tour with a local agent
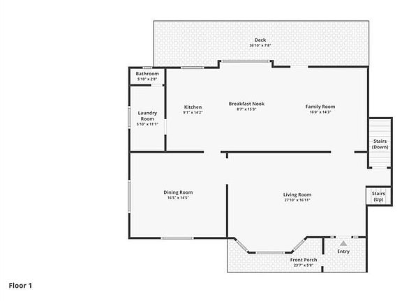
Facts & features
Interior
Bedrooms & bathrooms
- Bedrooms: 5
- Bathrooms: 3
- Full bathrooms: 2
- 1/2 bathrooms: 1
Rooms
- Room types: Bonus Room
Heating
- Central
Cooling
- Central Air
Appliances
- Included: Dishwasher, Refrigerator
- Laundry: In Hall
Features
- Other
- Flooring: Vinyl
- Basement: Unfinished
- Has fireplace: No
- Common walls with other units/homes: No Common Walls
Interior area
- Total structure area: 4,938
- Total interior livable area: 4,938 sqft
- Finished area above ground: 2,478
- Finished area below ground: 2,460
Property
Parking
- Total spaces: 2
- Parking features: None
Features
- Levels: Two
- Stories: 2
- Patio & porch: Deck
- Exterior features: Other
- Fencing: Back Yard
Lot
- Size: 2.59 Acres
- Features: Other
Details
- Parcel number: 12502008000
Construction
Type & style
- Home type: SingleFamily
- Architectural style: Ranch
- Property subtype: Single Family Residence
Materials
- Wood Siding
- Foundation: Pillar/Post/Pier
- Roof: Composition
Condition
- Resale
- New construction: No
- Year built: 1985
Utilities & green energy
- Sewer: Septic Tank
- Water: Public
- Utilities for property: Other
Community & HOA
Community
- Features: None
- Subdivision: WALT BUSSEY
HOA
- Has HOA: No
- Services included: None
Location
- Region: Mcdonough
Financial & listing details
- Price per square foot: $82/sqft
- Tax assessed value: $415,900
- Annual tax amount: $6,789
- Date on market: 3/25/2026
- Cumulative days on market: 3 days
- Listing agreement: Exclusive Agency,Exclusive Right To Sell
Estimated market value
$397,200
$377,000 - $417,000
$2,657/mo
Price history
Price history
| Date | Event | Price |
|---|---|---|
| 3/25/2026 | Listed for sale | $405,000+12.8%$82/sqft |
Source: | ||
| 6/22/2021 | Sold | $359,000+2.9%$73/sqft |
Source: | ||
| 6/16/2021 | Pending sale | $349,000$71/sqft |
Source: | ||
| 5/26/2021 | Listed for sale | $349,000+249%$71/sqft |
Source: | ||
| 9/10/2020 | Sold | $100,000$20/sqft |
Source: Public Record Report a problem | ||
Public tax history
Public tax history
| Year | Property taxes | Tax assessment |
|---|---|---|
| 2024 | $6,650 +9.3% | $166,360 +5.6% |
| 2023 | $6,082 +17.6% | $157,520 +17.7% |
| 2022 | $5,174 +228.7% | $133,840 +234.6% |
| 2021 | $1,574 +135.9% | $40,000 -52.7% |
| 2020 | $667 0% | $84,520 +9.7% |
| 2019 | $667 | $77,040 +8% |
| 2018 | -- | $71,360 +23.5% |
| 2016 | $666 | $57,760 +15% |
| 2015 | $666 +11.1% | $50,240 +21.8% |
| 2014 | $599 | $41,240 |
| 2013 | -- | -- |
| 2012 | -- | -- |
| 2011 | -- | -- |
| 2010 | -- | -- |
| 2009 | -- | -- |
| 2008 | $537 -1.5% | -- |
| 2007 | $545 +5.1% | $62,280 +4% |
| 2005 | $519 | $59,880 |
| 2004 | $519 +13.4% | $59,880 +12.4% |
| 2003 | $458 +6% | $53,280 +3.5% |
| 2002 | $431 -50% | $51,480 +1.6% |
| 2001 | $862 -25% | $50,680 +5% |
| 2000 | $1,150 | $48,280 |
Find assessor info on the county website
BuyAbility℠ payment
Est. payment
$2,350/mo
Principal & interest
$2023
Property taxes
$327
More affordability tools
Climate risks
Neighborhood: 30252
Nearby schools
GreatSchools rating
- 3/10Tussahaw Elementary SchoolGrades: PK-5Distance: 1.8 mi
- 4/10Locust Grove Middle SchoolGrades: 6-8Distance: 5 mi
- 3/10Locust Grove High SchoolGrades: 9-12Distance: 4.7 mi
Schools provided by the listing agent
- Elementary: Tussahaw
- Middle: Locust Grove
- High: Locust Grove
Source: GAMLS. This data may not be complete. We recommend contacting the local school district to confirm school assignments for this home.
Local experts in 30252
- Georgia
- Henry County
- McDonough
- 30252
- 1625 King Mill Rd







