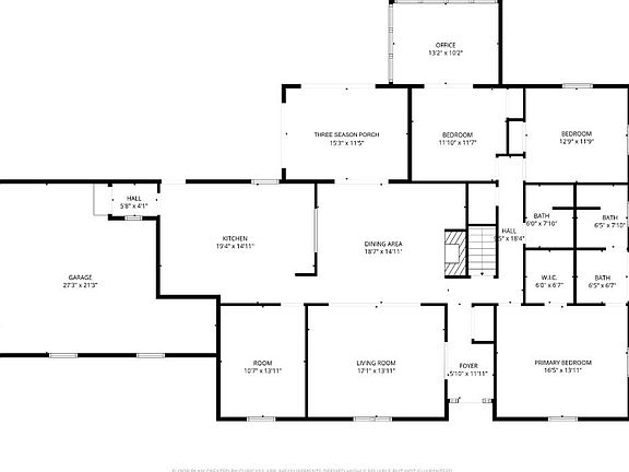
Experience the perfect blend of rural tranquility and commuter convenience in this sprawling Dublin ranch. Set on 4.14 private acres within the Contoocook Valley School District, this property offers a rare "one-level living" floor plan that is equally suited for those looking to downsize or a growing family in search of space and flexibility. Situated on Route 101 and set far back from the road via a private drive, the location provides a direct, easy commute east to Manchester and Nashua, or west to Keene and Vermont. The home’s exterior has been recently transformed with beautiful, natural vertical board siding, giving it a modern-yet-rustic aesthetic. The roof is three years old and carries a transferable warranty. Inside, the home is bathed in natural light, showcasing wood flooring that runs throughout. The kitchen is designed for the home chef, featuring stylish wood cabinetry, newer stainless steel appliances, and a functional island. The adjacent dining room, centered around a classic fireplace, flows into a versatile office, den, or workout room. The interior palette is warm and engaging, ensuring the sunlight brightens every gathering. The primary suite features a private ensuite bath and walk-in closet, while a second large bedroom includes a dedicated sitting area—perfect for a home office, nursery, or reading nook. A third bedroom and additional full bath ensure plenty of room for guests. For additional living space, the sunroom has been updated with new sliders, fresh flooring, and natural bead board. The walk-out basement is a standout feature, protected by a warrantied waterproofing system and equipped with a newer wood stove, providing a secondary heat source. Outside, the 4+ acre lot offers quintessential New Hampshire hobby farm possibilities, ready for goats, chickens, or expansive gardens, all while enjoying views of Mount Monadnock. Parking and storage are ample. Great commuter location.
Active
Listed by: Keller Williams Realty Metro-Keene
Price cut: $10K (3/2)
$590,000
1322 Main Street, Dublin, NH 03444
3beds
2,520sqft
Est.:
Ranch
Built in 1960
4.31 Acres Lot
$572,600 Zestimate®
$234/sqft
$-- HOA
What's special
Views of mount monadnockModern-yet-rustic aestheticStylish wood cabinetryNewer stainless steel appliancesFunctional island
- 69 days |
- 1,648 |
- 47 |
Zillow last checked: 7 hours ago
Listing updated: March 31, 2026 at 11:41am
Listed by:
Lisa Stone,
Keller Williams Realty Metro-Keene 603-352-0514
Source: PrimeMLS,MLS#: 5074774
Tour with a local agent
Facts & features
Interior
Bedrooms & bathrooms
- Bedrooms: 3
- Bathrooms: 2
- Full bathrooms: 2
Heating
- Oil
Cooling
- None
Appliances
- Included: Dishwasher, Microwave, Wall Oven, Refrigerator
- Laundry: In Basement
Features
- Dining Area, Kitchen Island, Primary BR w/ BA, Natural Light, Walk-In Closet(s), Programmable Thermostat, Smart Thermostat
- Flooring: Wood, Vinyl Plank
- Basement: Concrete,Concrete Floor,Daylight,Interior Stairs,Walkout,Interior Access,Exterior Entry,Walk-Out Access
- Number of fireplaces: 1
- Fireplace features: Wood Burning, 1 Fireplace
Interior area
- Total structure area: 4,570
- Total interior livable area: 2,520 sqft
- Finished area above ground: 2,520
- Finished area below ground: 0
Property
Parking
- Total spaces: 6
- Parking features: Paved, Direct Entry, Driveway, Garage, Off Street, Parking Spaces 6+, Carport
- Garage spaces: 2
- Has carport: Yes
- Has uncovered spaces: Yes
Accessibility
- Accessibility features: One-Level Home
Features
- Levels: One
- Stories: 1
- Patio & porch: Enclosed Porch
- Exterior features: Shed
- Fencing: Partial
- Frontage length: Road frontage: 896
Lot
- Size: 4.31 Acres
- Features: Country Setting, Field/Pasture, Hilly, Major Road Frontage, Near School(s)
Details
- Parcel number: DUBLM00018B000008L000000
- Zoning description: RU RUR
Construction
Type & style
- Home type: SingleFamily
- Architectural style: Ranch
- Property subtype: Ranch
Materials
- Wood Frame, Wood Siding
- Foundation: Concrete
- Roof: Asphalt Shingle
Condition
- New construction: No
- Year built: 1960
Utilities & green energy
- Electric: 200+ Amp Service
- Sewer: Private Sewer
- Utilities for property: Cable Available
Community & HOA
Location
- Region: Dublin
Financial & listing details
- Price per square foot: $234/sqft
- Tax assessed value: $509,100
- Annual tax amount: $9,159
- Date on market: 1/23/2026
- Exclusions: washer & dryer
Estimated market value
$572,600
$544,000 - $601,000
$3,155/mo
Price history
Price history
| Date | Event | Price |
|---|---|---|
| 3/2/2026 | Price change | $590,000-1.7%$234/sqft |
Source: | ||
| 1/23/2026 | Listed for sale | $600,000+53.8%$238/sqft |
Source: | ||
| 12/20/2021 | Sold | $390,000-4.6%$155/sqft |
Source: | ||
| 11/23/2021 | Price change | $409,000-4.7%$162/sqft |
Source: | ||
| 11/16/2021 | Listed for sale | $429,000+79.5%$170/sqft |
Source: | ||
| 12/16/2017 | Listing removed | $239,000$95/sqft |
Source: Better Homes & Gardens Real Estate/The Masiello Group #4640403 Report a problem | ||
| 11/27/2017 | Listed for sale | $239,000$95/sqft |
Source: Better Homes & Gardens Real Estate/The Masiello Group #4640403 Report a problem | ||
| 11/13/2017 | Pending sale | $239,000$95/sqft |
Source: Better Homes & Gardens Real Estate/The Masiello Group #4640403 Report a problem | ||
| 10/2/2017 | Price change | $239,000-4%$95/sqft |
Source: Better Homes & Gardens Real Estate/The Masiello Group #4640403 Report a problem | ||
| 7/22/2017 | Listed for sale | $249,000$99/sqft |
Source: Better Homes & Gardens Real Estate/The Masiello Group #4640403 Report a problem | ||
| 7/8/2017 | Pending sale | $249,000$99/sqft |
Source: Better Homes & Gardens Real Estate/The Masiello Group #4640403 Report a problem | ||
| 6/12/2017 | Listed for sale | $249,000+232%$99/sqft |
Source: BHG Masiello Peterborough #4640403 Report a problem | ||
| 3/31/2014 | Sold | $75,000$30/sqft |
Source: Public Record Report a problem | ||
| 2/18/2014 | Listed for sale | $75,000-81.8%$30/sqft |
Source: HKS Associates, Inc. #4337117 Report a problem | ||
| 7/14/2011 | Sold | $412,600$164/sqft |
Source: Public Record Report a problem | ||
Public tax history
Public tax history
| Year | Property taxes | Tax assessment |
|---|---|---|
| 2024 | $9,159 +6.8% | $509,100 +64.3% |
| 2023 | $8,572 +9.9% | $309,800 -0.8% |
| 2022 | $7,798 +32.7% | $312,300 +24.4% |
| 2021 | $5,878 -4.9% | $251,000 |
| 2020 | $6,182 | $251,000 |
| 2019 | $6,182 +6.3% | $251,000 +22.7% |
| 2018 | $5,817 +33.9% | $204,600 +14% |
| 2017 | $4,345 -14.5% | $179,400 -1.8% |
| 2016 | $5,081 +15.6% | $182,700 +10.1% |
| 2015 | $4,396 +33.6% | $165,900 +33.9% |
| 2014 | $3,291 -51% | $123,900 -56.4% |
| 2013 | $6,721 -12.4% | $284,300 -18% |
| 2012 | $7,675 -1.7% | $346,500 |
| 2011 | $7,810 +5.3% | $346,500 |
| 2010 | $7,415 +3.6% | $346,500 |
| 2009 | $7,155 -0.7% | $346,500 -0.7% |
| 2008 | $7,207 -5.8% | $349,000 -9% |
| 2007 | $7,649 | $383,400 |
Find assessor info on the county website
BuyAbility℠ payment
Est. payment
$3,851/mo
Principal & interest
$2927
Property taxes
$924
More affordability tools
Climate risks
Neighborhood: 03444
Nearby schools
GreatSchools rating
- 2/10Dublin Consolidated SchoolGrades: K-5Distance: 0.8 mi
- 6/10South Meadow SchoolGrades: 5-8Distance: 5.2 mi
- 8/10Conval Regional High SchoolGrades: 9-12Distance: 5.1 mi
Schools provided by the listing agent
- Elementary: Dublin Consolidated Sch
- Middle: South Meadow School
- High: Contoocook Valley Reg High Sch
- District: Contoocook Valley SD SAU #1
Source: PrimeMLS. This data may not be complete. We recommend contacting the local school district to confirm school assignments for this home.
Local experts in 03444
- New Hampshire
- Cheshire County
- Dublin
- 03444
- 1322 Main Street




