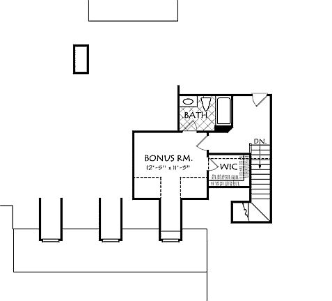
Open concept ranch floor plan with an additional bedroom and bathroom upstairs to make a total of 5 bedrooms and 4 bathrooms. Covered outdoor living with fireplace, 3 car garage, Spray foam insulation, Tank less hot water heater. TO many features to list come see us at Riata! We also have AT&T fiber, high speed internet!
This property is off market, which means it's not currently listed for sale or rent on Zillow. This may be different from what's available on other websites or public sources.


