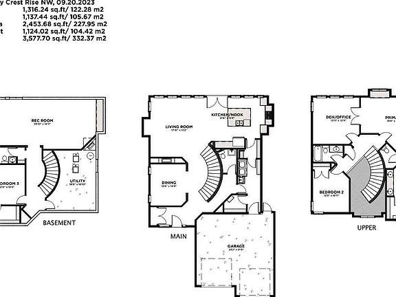
Nestled in the heart of nature, where luxury meets tranquility... Welcome to a home that's not just built for those with a taste for the finer things in life - 107 Valley Crest Rise NW is tucked away in the peaceful and family-friendly community of Valley Ridge. Backing onto gorgeous green space, this meticulously maintained home offers the perfect blend of comfort, convenience, & style with over 3,500 sq ft of developed living space on 3-levels. Step inside to discover the large foyer which leads to the open and airy floor plan that seamlessly connects the living, dining, and kitchen areas. The generous living room features floor to ceiling windows, allowing natural light to flood in, creating a warm and inviting atmosphere and is accented with a fireplace. The main floor flex room, with its gas fireplace, can be used for a formal dining room, office, play space, music &/or reading room! The gourmet kitchen is a chef's delight, boasting granite countertops, Wolf range along other high end stainless steel appliances, Impressively upgraded & ample cabinets, capped off with so much counterspace on that chefs dream island! From the spacious dining area step outside to your backyard paradise with a lock stone patio perfect for al fresco dining and entertaining. Follow the curved staircase up to the 2nd level where you find your master retreat designed with relaxation in mind with the views from a tranquil sitting area. It gets even better with the luxurious 5 pc en-suite with corner soaker tub, custom stone steam shower, his and her sinks. With sunlight beaming down thanks to a large skylight, it truly is a private oasis. Oh and we can't forget about the large walk in closet, with all of the built-ins, natural light and even laundry chute for your convenience! The double doors lead to the unique office space/den or could be easily converted to a nursery, bedroom or even a personal retreat. The fully developed basement features everything you could want! 9' ceilings, extra bedroom & bath, a large recreation area with built-ins, a corner fireplace, and large windows throughout, plus there is extra storage in the utility room. 2 BRAND new high eff furnaces and hot water tank, IN-GROUND SPRINKLERS, Networking Package, Kinetico Water System, Water Softner and more round out this amazing home! This home is Close to parks, walking paths, golf, shopping and Canada Olympic Park and a short drive to our beautiful Rocky Mountains!! Dont miss this stunning home!
This property is off market, which means it's not currently listed for sale or rent on Zillow. This may be different from what's available on other websites or public sources.



