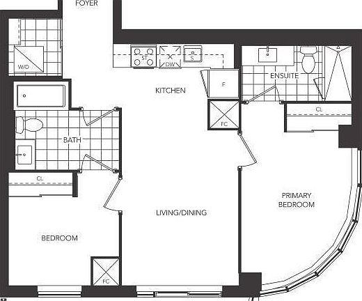
Must show one of the best south facing corner unit floor plans in this tower. Approx 850 of living space corner unit high ceiling, all floor to ceiling windows for lots of natural light. Step into living and dining combined with direct access to the balcony. tall kitchen cabinets with all S/S appliances, quartz countertop, undermount sink. Light natural colour palette with laminate floors throughout. Primary bedroom with stunning floor to ceiling round windows, double closet space and primary 3-piece bathroom. 2nd bedroom with large window, double closet and direct access to 4-piece bathroom. Ensuite laundry combo. Step out to Balcony with stunning views of the city and lake Ontario. Short walk to Pickering GO station, Pickering town centre, short drive Beach and waterfront trails and Beach park, HWY 401, great schools and shopping. one underground parking included.
House for rent
C$2,699/mo
Fees may apply
1010 Sandy Beach Rd #1505, Pickering, ON L1W 3X5
2beds
Price may not include required fees and charges. Learn more|
Singlefamily
Available now
What's special
High ceilingLiving and dining combinedTall kitchen cabinetsQuartz countertopUndermount sinkLight natural colour paletteLaminate floors throughout
- 3 hours |
- -- |
- -- |
Zillow last checked: 10 hours ago
Listing updated: 10 hours ago
Travel times
Looking to buy when your lease ends?
Consider a first-time homebuyer savings account designed to grow your down payment with up to a 6% match & a competitive APY.
Facts & features
Interior
Bedrooms & bathrooms
- Bedrooms: 2
- Bathrooms: 2
- Full bathrooms: 2
Property
Parking
- Details: Contact manager
Features
- Exterior features: UNDERGROUND
Construction
Type & style
- Home type: SingleFamily
- Property subtype: SingleFamily
Community & HOA
Location
- Region: Pickering
Financial & listing details
- Lease term: Contact For Details
Price history
| Date | Event | Price |
|---|---|---|
| 3/9/2026 | Listed for rent | C$2,699 |
Source: | ||
Neighborhood: Brock Industrial
Nearby schools
GreatSchools rating
No schools nearby
We couldn't find any schools near this home.

