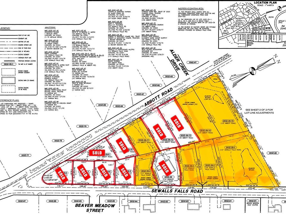
Builders take note! Here is your next project – 7 lots remaining with with town water & sewer. Cleared, level & ready to go! Lots range in size from a third to almost an acre and half. These can also be sold in smaller bundles or individually if you are looking for a smaller undertaking. A great place to live - close to Concord’s vibrant and historic downtown, Capital Center for the Arts, Beaver Meadow Golf Course, Concord- Lake Sunapee Rail Trails and the Oak Hill and Knowlton Forest conservation and hiking trails.
Active
Listed by: RE/MAX Innovative Properties
Price cut: $204.9K (2/27)
$1,439,300
0 Sewalls Falls & Abbott Road, Concord, NH 03303
--beds
--baths
4.74Acres
Unimproved Land
Built in ----
4.74 Acres Lot
$-- Zestimate®
$--/sqft
$-- HOA
What's special
- 140 days |
- 128 |
- 2 |
Zillow last checked: 8 hours ago
Listing updated: February 27, 2026 at 12:12pm
Listed by:
The Josh Naughton Team,
RE/MAX Innovative Properties jnaughton@innovativesells.com
Source: PrimeMLS,MLS#: 5066255
Facts & features
Property
Features
- Frontage length: Road frontage: 0
Lot
- Size: 4.74 Acres
- Features: Level, Open Lot
Details
- Zoning description: RES
Utilities & green energy
- Electric: At Street
- Utilities for property: Propane, Sewer Connected
Community & HOA
Community
- Subdivision: Country Estates of Concord
Location
- Region: Concord
Financial & listing details
- Tax assessed value: $831,700
- Annual tax amount: $20,592
- Date on market: 10/17/2025
Estimated market value
Not available
Estimated sales range
Not available
Not available
Price history
Price history
| Date | Event | Price |
|---|---|---|
| 2/27/2026 | Price change | $1,439,300-12.5% |
Source: | ||
| 12/17/2025 | Price change | $1,644,200-11.1% |
Source: | ||
| 10/17/2025 | Listed for sale | $1,849,100+12.1% |
Source: | ||
| 12/11/2024 | Listing removed | $1,649,000 |
Source: MLS PIN #73295983 Report a problem | ||
| 10/15/2024 | Price change | $1,649,000-38.9% |
Source: | ||
| 9/26/2024 | Listed for sale | $2,699,000 |
Source: | ||
Public tax history
Public tax history
Tax history is unavailable.BuyAbility℠ payment
Estimated monthly payment
Boost your down payment with 6% savings match
Earn up to a 6% match & get a competitive APY with a *. Zillow has partnered with to help get you home faster.
Learn more*Terms apply. Match provided by Foyer. Account offered by Pacific West Bank, Member FDIC.Climate risks
Neighborhood: 03303
Nearby schools
GreatSchools rating
- 5/10Beaver Meadow SchoolGrades: PK-5Distance: 0.4 mi
- 6/10Rundlett Middle SchoolGrades: 6-8Distance: 2.5 mi
- 4/10Concord High SchoolGrades: 9-12Distance: 4.1 mi
Schools provided by the listing agent
- Elementary: Beaver Meadow Elementary Sch
- Middle: Rundlett Middle School
- High: Concord High School
- District: Concord School District SAU #8
Source: PrimeMLS. This data may not be complete. We recommend contacting the local school district to confirm school assignments for this home.




