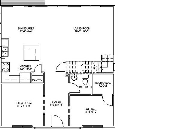
Here is your opportunity to own a well-built Hamlin Home. This spacious home is almost 1900 sq ft. with 3 bedrooms and 2.5 bathrooms on 2 private acres. This home not only has 3 bedrooms but it also has a first floor office and a first floor FLEX ROOM. Use this flex room for a playroom, library, etc. The Living Room/Kitchen offer an open floor plan with 9 ft ceilings. Kitchen has a pantry, island and an eat-in space. Off the kitchen you can enjoy your backyard 12 x 12 deck. The downstairs has Luxury Vinyl floors throughout and upstairs has carpets in the bedrooms. Do not miss this opportunity to learn more about this very nice sized home on 2 acres. Seller offering to pay $5000 towards buyers cc/upgrades.
New construction
$425,000
0 Courtney Rd, Hanover, VA 23069
3beds
1,881sqft
Est.:
Single Family Residence
Built in 2026
2 Acres Lot
$425,000 Zestimate®
$226/sqft
$-- HOA
What's special
- 58 days |
- 384 |
- 13 |
Zillow last checked: 8 hours ago
Listing updated: February 09, 2026 at 09:25am
Listed by:
Stacey McCauley 804-683-9344,
Resource Realty Services
Source: CVRMLS,MLS#: 2600060
Originating MLS: Central Virginia Regional MLS
Tour with a local agent
Facts & features
Interior
Bedrooms & bathrooms
- Bedrooms: 3
- Bathrooms: 3
- Full bathrooms: 2
- 1/2 bathrooms: 1
Primary bedroom
- Description: Spacious, private bthrm, large walk-in closet
- Level: Second
- Dimensions: 16.6 x 13.7
Bedroom 2
- Description: Carpet, Nice sized closet
- Level: Second
- Dimensions: 11.6 x 14.0
Bedroom 3
- Description: Another very nice bedroom, Carpet
- Level: Second
- Dimensions: 11.6 x 14.0
Additional room
- Description: FLEX ROOM
- Level: First
- Dimensions: 11.0 x 11.0
Dining room
- Description: Eat-in space of Kitchen, Sunny space
- Level: First
- Dimensions: 11.4 x 8.4
Foyer
- Description: Spacious, LVP
- Level: First
- Dimensions: 6.3 x 14.3
Other
- Description: Tub & Shower
- Level: Second
Half bath
- Level: First
Kitchen
- Description: LVP flooring, Double sinks, Island
- Level: First
- Dimensions: 11.4 x 11.8
Living room
- Description: Open concept, LVP flooring
- Level: First
- Dimensions: 18.1 x 14.0
Office
- Description: LVP flooring, nice size
- Level: First
- Dimensions: 11.6 x 8.0
Heating
- Electric, Heat Pump
Cooling
- Heat Pump
Appliances
- Included: Dishwasher, Electric Cooking, Microwave, Oven
- Laundry: Dryer Hookup
Features
- Eat-in Kitchen, Granite Counters, Kitchen Island, Bath in Primary Bedroom, Pantry
- Basement: Crawl Space
- Attic: Access Only
- Has fireplace: No
Interior area
- Total interior livable area: 1,881 sqft
- Finished area above ground: 1,881
- Finished area below ground: 0
Property
Parking
- Parking features: No Garage
Features
- Levels: Two
- Stories: 2
- Patio & porch: Front Porch, Deck, Porch
- Exterior features: Deck, Porch
- Pool features: None
- Fencing: None
Lot
- Size: 2 Acres
- Features: Level
- Topography: Level
Details
- Parcel number: 103a65c
Construction
Type & style
- Home type: SingleFamily
- Architectural style: Two Story
- Property subtype: Single Family Residence
Materials
- Vinyl Siding, Wood Siding
Condition
- New Construction
- New construction: Yes
- Year built: 2026
Utilities & green energy
- Sewer: Septic Tank
- Water: Well
Community & HOA
Community
- Subdivision: None
Location
- Region: Hanover
Financial & listing details
- Price per square foot: $226/sqft
- Tax assessed value: $55,500
- Annual tax amount: $289
- Date on market: 12/31/2025
- Ownership: Individuals
- Ownership type: Sole Proprietor
Estimated market value
$425,000
$404,000 - $446,000
$2,503/mo
Price history
Price history
| Date | Event | Price |
|---|---|---|
| 1/2/2026 | Listed for sale | $425,000+525%$226/sqft |
Source: | ||
| 4/9/2025 | Sold | $68,000$36/sqft |
Source: | ||
| 2/21/2025 | Pending sale | $68,000$36/sqft |
Source: | ||
| 1/13/2025 | Listed for sale | $68,000$36/sqft |
Source: | ||
| 12/13/2024 | Pending sale | $68,000$36/sqft |
Source: | ||
| 12/11/2024 | Listed for sale | $68,000$36/sqft |
Source: | ||
| 6/15/2024 | Listing removed | -- |
Source: | ||
| 3/1/2024 | Pending sale | $68,000$36/sqft |
Source: | ||
| 2/2/2024 | Listed for sale | $68,000+9.7%$36/sqft |
Source: | ||
| 6/16/2023 | Sold | $62,000-11.3%$33/sqft |
Source: | ||
| 5/31/2023 | Pending sale | $69,900$37/sqft |
Source: | ||
| 5/3/2023 | Listed for sale | $69,900+7.5%$37/sqft |
Source: | ||
| 11/29/2022 | Listing removed | $65,000$35/sqft |
Source: | ||
| 10/26/2022 | Price change | $65,000+8.3%$35/sqft |
Source: | ||
| 10/3/2022 | Price change | $60,000-14.3%$32/sqft |
Source: | ||
| 9/2/2022 | Listed for sale | $70,000+100%$37/sqft |
Source: | ||
| 6/6/2021 | Listing removed | -- |
Source: | ||
| 4/5/2021 | Listed for sale | $35,000+40%$19/sqft |
Source: | ||
| 11/26/2019 | Sold | $25,000$13/sqft |
Source: | ||
Public tax history
Public tax history
Tax history is unavailable.BuyAbility℠ payment
Est. payment
$2,192/mo
Principal & interest
$1994
Property taxes
$198
Climate risks
Neighborhood: 23069
Nearby schools
GreatSchools rating
- 3/10Bowling Green Elementary SchoolGrades: PK-5Distance: 14 mi
- 2/10Caroline Middle SchoolGrades: 6-8Distance: 11.9 mi
- 3/10Caroline High SchoolGrades: 9-12Distance: 11.7 mi
Schools provided by the listing agent
- Elementary: Bowling Green Elementary
- Middle: Caroline
- High: Caroline
Source: CVRMLS. This data may not be complete. We recommend contacting the local school district to confirm school assignments for this home.




