Buildable plan: Darius, Stonehaven, Middleton, ID 83644
Buildable plan
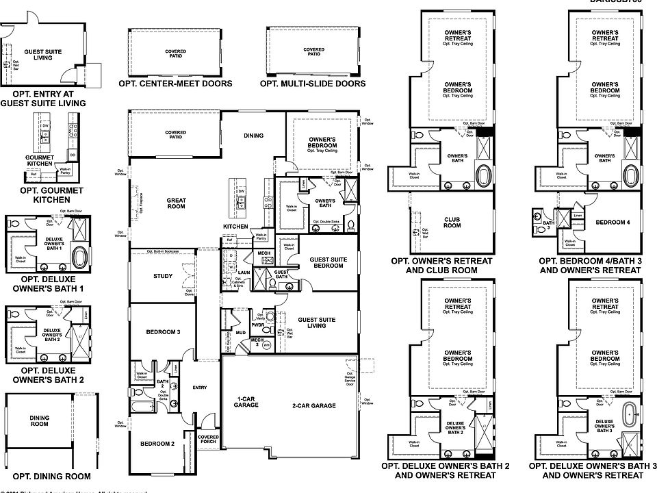
This is a floor plan you could choose to build within this community.
View move-in ready homesWhat's special
- 129 |
- 4 |
Travel times
Schedule tour
Select your preferred tour type — either in-person or real-time video tour — then discuss available options with the builder representative you're connected with.
Facts & features
Interior
Bedrooms & bathrooms
- Bedrooms: 4
- Bathrooms: 4
- Full bathrooms: 3
- 1/2 bathrooms: 1
Interior area
- Total interior livable area: 2,922 sqft
Video & virtual tour
Property
Parking
- Total spaces: 3
- Parking features: Attached
- Attached garage spaces: 3
Features
- Levels: 1.0
- Stories: 1
Construction
Type & style
- Home type: SingleFamily
- Property subtype: Single Family Residence
Condition
- New Construction
- New construction: Yes
Details
- Builder name: Richmond American Homes
Community & HOA
Community
- Subdivision: Stonehaven
Location
- Region: Middleton
Financial & listing details
- Price per square foot: $231/sqft
- Date on market: 12/17/2025
About the community
8 Credit Score Management Tips
Download our FREE guide & stay on the path to healthy credit.Source: Richmond American Homes
12 homes in this community
Homes based on this plan
| Listing | Price | Bed / bath | Status |
|---|---|---|---|
| 1363 Stirling Mdws | $674,990 | 4 bed / 4 bath | Under construction |
| 1375 White Cliffs St | $679,990 | 4 bed / 4 bath | Under construction |
| 1301 White Cliffs St | $804,990 | 3 bed / 4 bath | Under construction |
| 1323 White Cliffs St | $829,990 | 3 bed / 4 bath | Under construction |
Other available homes
| Listing | Price | Bed / bath | Status |
|---|---|---|---|
| 1216 Stirling Meadows Ct | $539,990 | 3 bed / 3 bath | Available |
| 551 Thurso Ln | $604,990 | 5 bed / 3 bath | Available |
| 1229 Stirling Meadows Ct | $729,990 | 4 bed / 4 bath | Available |
| 1395 Stirling Mdws | $674,990 | 5 bed / 4 bath | Under construction |
| 1315 White Cliffs St | $729,990 | 4 bed / 3 bath | Under construction |
| 1275 Stirling Meadows St | $769,990 | 3 bed / 2 bath | Under construction |
| 1217 Stirling Meadows Ct | $684,990 | 4 bed / 3 bath | Pending |
| 1231 Stirling Meadows Ct | $709,990 | 3 bed / 3 bath | Pending |
Source: Richmond American Homes
Contact builder

By pressing Contact builder, you agree that Zillow Group and other real estate professionals may call/text you about your inquiry, which may involve use of automated means and prerecorded/artificial voices and applies even if you are registered on a national or state Do Not Call list. You don't need to consent as a condition of buying any property, goods, or services. Message/data rates may apply. You also agree to our Terms of Use.
Learn how to advertise your homesEstimated market value
Not available
Estimated sales range
Not available
$3,168/mo
Price history
| Date | Event | Price |
|---|---|---|
| 2/16/2026 | Price change | $674,990-2.9%$231/sqft |
Source: | ||
| 2/13/2026 | Price change | $694,990-0.7%$238/sqft |
Source: | ||
| 1/8/2026 | Listed for sale | $699,990+3.7%$240/sqft |
Source: | ||
| 12/9/2025 | Listing removed | $674,990$231/sqft |
Source: | ||
| 11/7/2025 | Price change | $674,990-1.5%$231/sqft |
Source: | ||
Public tax history
8 Credit Score Management Tips
Download our FREE guide & stay on the path to healthy credit.Source: Richmond American HomesMonthly payment
Neighborhood: 83644
Nearby schools
GreatSchools rating
- 7/10Middleton Heights Elementary SchoolGrades: PK-5Distance: 0.6 mi
- NAMiddleton Middle SchoolGrades: 6-8Distance: 1.1 mi
- 8/10Middleton High SchoolGrades: 9-12Distance: 0.4 mi
Schools provided by the builder
- Elementary: Middleton Heights Elementary School
- Middle: Middleton Middle School
- High: Middleton High School
- District: Middleton School District
Source: Richmond American Homes. This data may not be complete. We recommend contacting the local school district to confirm school assignments for this home.








