Buildable plan: Seth, Harvest Crossing, Aurora, CO 80018
Buildable plan
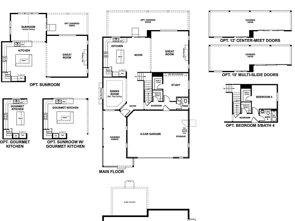
This is a floor plan you could choose to build within this community.
View move-in ready homesWhat's special
- 90 |
- 1 |
Travel times
Schedule tour
Select your preferred tour type — either in-person or real-time video tour — then discuss available options with the builder representative you're connected with.
Facts & features
Interior
Bedrooms & bathrooms
- Bedrooms: 4
- Bathrooms: 3
- Full bathrooms: 2
- 1/2 bathrooms: 1
Interior area
- Total interior livable area: 3,185 sqft
Video & virtual tour
Property
Parking
- Total spaces: 2
- Parking features: Attached
- Attached garage spaces: 2
Features
- Levels: 2.0
- Stories: 2
Construction
Type & style
- Home type: SingleFamily
- Property subtype: Single Family Residence
Condition
- New Construction
- New construction: Yes
Details
- Builder name: Richmond American Homes
Community & HOA
Community
- Subdivision: Harvest Crossing
Location
- Region: Aurora
Financial & listing details
- Price per square foot: $203/sqft
- Date on market: 2/10/2026
About the community
8 Credit Score Management Tips
Download our FREE guide & stay on the path to healthy credit.Source: Richmond American Homes
9 homes in this community
Available homes
| Listing | Price | Bed / bath | Status |
|---|---|---|---|
| 25283 E Warren Place | $654,950 | 3 bed / 2 bath | Available |
| 25161 E Evans Drive | $669,950 | 3 bed / 2 bath | Available |
| 2132 S Irvington Street | $677,950 | 3 bed / 3 bath | Available |
| 25000 E Pacific Avenue | $684,950 | 3 bed / 2 bath | Available |
| 25020 E Pacific Avenue | $694,950 | 4 bed / 3 bath | Available |
| 25254 E Warren Place | $709,950 | 3 bed / 3 bath | Available |
| 2144 S Ider Way | $749,950 | 4 bed / 3 bath | Available |
| 25204 E Warren Place | $664,950 | 3 bed / 2 bath | Pending |
| 2124 S Ider Way | $789,950 | 5 bed / 4 bath | Pending |
Source: Richmond American Homes
Contact builder

By pressing Contact builder, you agree that Zillow Group and other real estate professionals may call/text you about your inquiry, which may involve use of automated means and prerecorded/artificial voices and applies even if you are registered on a national or state Do Not Call list. You don't need to consent as a condition of buying any property, goods, or services. Message/data rates may apply. You also agree to our Terms of Use.
Learn how to advertise your homesEstimated market value
$647,500
$615,000 - $680,000
$3,728/mo
Price history
| Date | Event | Price |
|---|---|---|
| 2/17/2026 | Price change | $647,950+0.5%$203/sqft |
Source: | ||
| 4/23/2025 | Price change | $644,950-17.8%$202/sqft |
Source: | ||
| 4/14/2025 | Listed for sale | $784,950$246/sqft |
Source: | ||
Public tax history
8 Credit Score Management Tips
Download our FREE guide & stay on the path to healthy credit.Source: Richmond American HomesMonthly payment
Neighborhood: 80018
Nearby schools
GreatSchools rating
- 8/10Murphy Creek K-8 SchoolGrades: PK-8Distance: 1.1 mi
- 5/10Vista Peak 9-12 PreparatoryGrades: 9-12Distance: 3.2 mi
Schools provided by the builder
- Elementary: Harmony Ridge P-8 School
- District: Aurora Public Schools
Source: Richmond American Homes. This data may not be complete. We recommend contacting the local school district to confirm school assignments for this home.






