Buildable plan: Hemingway, Deer Run, Willard, UT 84340
Buildable plan
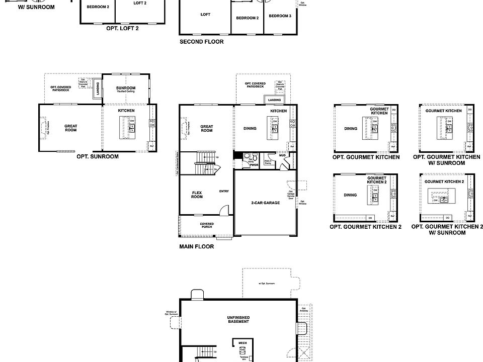
This is a floor plan you could choose to build within this community.
View move-in ready homesWhat's special
- 18 |
- 0 |
Travel times
Schedule tour
Select your preferred tour type — either in-person or real-time video tour — then discuss available options with the builder representative you're connected with.
Facts & features
Interior
Bedrooms & bathrooms
- Bedrooms: 4
- Bathrooms: 3
- Full bathrooms: 2
- 1/2 bathrooms: 1
Interior area
- Total interior livable area: 2,550 sqft
Video & virtual tour
Property
Parking
- Total spaces: 2
- Parking features: Attached
- Attached garage spaces: 2
Features
- Levels: 2.0
- Stories: 2
Construction
Type & style
- Home type: SingleFamily
- Property subtype: Single Family Residence
Condition
- New Construction
- New construction: Yes
Details
- Builder name: Richmond American Homes
Community & HOA
Community
- Subdivision: Deer Run
Location
- Region: Willard
Financial & listing details
- Price per square foot: $225/sqft
- Date on market: 1/25/2026
About the community
8 Credit Score Management Tips
Download our FREE guide & stay on the path to healthy credit.Source: Richmond American Homes
10 homes in this community
Homes based on this plan
| Listing | Price | Bed / bath | Status |
|---|---|---|---|
| 212 W 800 S | $574,990 | 4 bed / 3 bath | Under construction |
Other available homes
| Listing | Price | Bed / bath | Status |
|---|---|---|---|
| 204 W 800 S #341 | $479,990 | 3 bed / 2 bath | Available |
| 251 W 800 S #347 | $504,116 | 3 bed / 2 bath | Available |
| 212 W 800 S #340 | $574,990 | 4 bed / 3 bath | Available |
| 204 W 800 S | $479,990 | 3 bed / 2 bath | Under construction |
| 251 W 800 S | $504,116 | 3 bed / 2 bath | Under construction |
| 245 W 775 S | $507,143 | 3 bed / 2 bath | Under construction |
| 243 W 800 S | $519,007 | 4 bed / 3 bath | Under construction |
| 233 W 800 S | $539,195 | 4 bed / 3 bath | Under construction |
| 246 W 775 S | $540,800 | 4 bed / 3 bath | Under construction |
Source: Richmond American Homes
Contact builder

By pressing Contact builder, you agree that Zillow Group and other real estate professionals may call/text you about your inquiry, which may involve use of automated means and prerecorded/artificial voices and applies even if you are registered on a national or state Do Not Call list. You don't need to consent as a condition of buying any property, goods, or services. Message/data rates may apply. You also agree to our Terms of Use.
Learn how to advertise your homesEstimated market value
Not available
Estimated sales range
Not available
$2,621/mo
Price history
| Date | Event | Price |
|---|---|---|
| 3/2/2026 | Price change | $574,990+0.8%$225/sqft |
Source: | ||
| 12/19/2025 | Price change | $570,639-1.6%$224/sqft |
Source: | ||
| 10/14/2025 | Price change | $579,990+1.5%$227/sqft |
Source: | ||
| 7/12/2025 | Listed for sale | $571,681-3.1%$224/sqft |
Source: | ||
| 6/30/2025 | Listing removed | $589,990$231/sqft |
Source: | ||
Public tax history
8 Credit Score Management Tips
Download our FREE guide & stay on the path to healthy credit.Source: Richmond American HomesMonthly payment
Neighborhood: 84340
Nearby schools
GreatSchools rating
- NAWillard SchoolGrades: PK-1Distance: 0.9 mi
- 6/10Adele C. Young Intermediate SchoolGrades: 6-7Distance: 6.9 mi
- 4/10Box Elder High SchoolGrades: 10-12Distance: 7.5 mi
Schools provided by the builder
- Elementary: Willard Elementary School
- Middle: Adele C Young Intermediate
- High: Box Elder High School
- District: Box Elder School District
Source: Richmond American Homes. This data may not be complete. We recommend contacting the local school district to confirm school assignments for this home.







