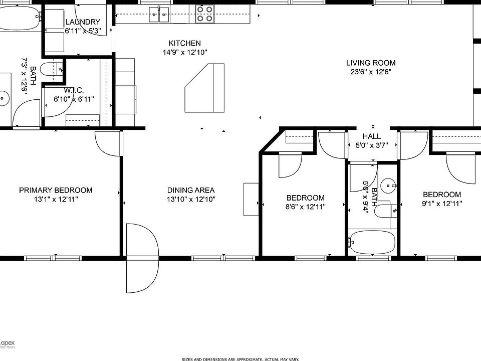
Modern and inviting 3 BD 2 BA split-floor-plan manufactured home built in 2016 offering 1,456 sq ft of bright, open living space. Featuring new flooring, high ceilings, and abundant natural light, this home combines comfort and functionality. The spacious layout provides privacy between the primary suite and secondary bedrooms. This home shares a 1-acre lot w/ 2 other homes, creating a small community feel while still offering privacy. Enjoy outdoor living on the front deck or relax on the private back patio. Two matching storage sheds provide excellent additional storage. Parking is available for up to 2 vehicles. Rent includes quarterly pest control, garbage service, and semi-annual landscape cleanup of the common areas. Located on a shared well (with Unit C) and includes access to a community greenhouse. Fiber internet available. Tenants are responsible for landscaping within the fenced yard and around the home, plus sewer and electric. Up to 2 dogs under 40 lbs allowed (no cats).
Wilson Tri-Plex
225 Wilson Rd, Central Point, OR 97502
Apartment building
3 beds
Available units
Price may not include required fees and charges.
Unit , sortable column | Sqft, sortable column | Available, sortable column | Base rent, sorted ascending |
|---|---|---|---|
1,456 | Now | $1,850 |
What's special
Modern and invitingNew flooringAbundant natural lightPrivate back patioHigh ceilings
Facts, features & policies
Unit Features
Appliances
- Dishwasher
- Microwave Oven: Microwave
- Range Oven
- Refrigerator
Other
- Garbage (Up To 35 Gal Cart)
- Recycling
Policies
Pet essentials
- CatsCats are not allowed
Neighborhood: 97502
Areas of interest
Use our interactive map to explore the neighborhood and see how it matches your interests.
Travel times
Walk, Transit & Bike Scores
Walk Score®
/ 100
Car-DependentTransit Score®
/ 100
No Nearby TransitBike Score®
/ 100
Somewhat BikeableNearby schools in Central Point
GreatSchools rating
- 5/10Jewett Elementary SchoolGrades: K-5Distance: 1.5 mi
- 5/10Scenic Middle SchoolGrades: 6-8Distance: 1.9 mi
- 3/10Crater Renaissance AcademyGrades: 9-12Distance: 2 mi
Frequently asked questions
What is the walk score of Wilson Tri-Plex?
Wilson Tri-Plex has a walk score of 6, it's car-dependent.
What schools are assigned to Wilson Tri-Plex?
The schools assigned to Wilson Tri-Plex include Jewett Elementary School, Scenic Middle School, and Crater Renaissance Academy.
What neighborhood is Wilson Tri-Plex in?
Wilson Tri-Plex is in the 97502 neighborhood in Central Point, OR.
What are Wilson Tri-Plex's policies on pets?
Cats are not allowed.







